Pabellón de Lamego, Barbosa & Guimarães
El Pabellón Multiuso de Lamego progresa en la parte inferior del monte de Santo Estêvão para dar forma a un espacio urbano relevante. Lindante a un complejo monumental del siglo XVIII, el diseño usa el granito como material preponderante de la construcción, muy representativo en la arquitectura de Lamego. De esta forma, los colores y texturas del pabellón favorecen una mejor integración con el sitio.
Enormes gradas conducen a la plaza superior del complejo, coronadas en uno de sus lados por un volumen en voladizo, último nivel del centro. Por fuera, un anfiteatro emplazado en la parte superior enlaza las dos plazas, una ubicada en la parte superior del edificio y otra en la parte baja de la ladera constituida como plaza de acceso. Un espacio destinado a la antigua feria del parque actúa como antesala del nuevo Pabellón de Lamego.
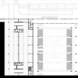
El parque urbano se orienta en otra dirección; rediseña sus límites respecto a la nueva plaza, para generar un espacio más controlado y establecer otra relación con las calles circundantes. El pabellón de Lamego dispone de un auditorio para 120 personas, un salón de usos múltiples y cuatro pisos de estacionamientos.
Pabellón de Lamego Memoria descriptiva
Con vistas panorámicas de la ciudad completa, el frondoso parque del monte Santo Estêvão está directamente relacionado con el centro de la ciudad de Lamego a través del Escadório do Santuário de Nossa Senhora dos Remédios, que marca su camino a lo largo de la Avenida das Tílias. Situado en la base del parque, junto con un complejo monumental de siglo 18, el Pabellón de Lamego suaviza la ladera del monte Santo Estêvão, aprovechando la pendiente natural para anular su volumen, a través de una plaza y un anfiteatro instalado en el techo.
El espacio actual de feria, que ahora actúa como una antesala para el nuevo Pabellón, estaba fuera de carácter. Sus límites fueron rediseñados, transformándolo en un espacio más controlado, estableciendo una nueva relación con las calles circundantes. En la fachada sur, donde se encuentran los principales accesos al edificio, el gran anfiteatro permite una conexión que debe hacerse entre las dos plazas, la nueva en un nivel alto por encima del suelo y la otra en un nivel bajo.
El parque urbano adquiere una nueva orientación, una nueva Plaza en el Pabellón de Lamego fusionándose en su extremo norte. Estos tres nuevos espacios, el Parque, la Feria y la Plaza, en relación directa con el eje urbano definido por la Alameda y Escadório de Nossa Senhora dos Remédios, refuerzan y mejoran significativamente el espacio público de la ciudad de Lamego.
El Pabellón de Lamego, que es la instalación de anclaje en la intervención, permite diversos usos, el fruto de la naturaleza polivalente del arena y del hall de entrada, que sus 50 metros de luz y altura de techo de 10 hacen posible. El pabellón también dispone de duchas y vestuarios, un salón de usos múltiples y un auditorio para 120 personas, que complementa su versatilidad. Con el Pabellón de Lamego habrá un estacionamiento, con cuatro plantas subterráneas, lo que permite calles con niveles altos y bajos que serán conectadas.
Granito, presente en el subsuelo y en la arquitectura de Lamego, abriga los nuevos espacios públicos, reforzando el carácter de continuidad e integración que el proyecto busca.
Barbosa & Guimarães
Fotografías: ©José Campos
TECNNE | Arquitectura y contextos ©Marcelo Gardinetti 2021 Todos los derechos reservados.
El contenido de este sitio web está protegido por los derechos de propiedad intelectual e industrial. Salvo en los casos previstos en la ley, su reproducción, distribución, comunicación pública o transformación sin la autorización del titular de los derechos es una infracción penalizada por la legislación vigente. – Justificación del uso de imágenes y fotografías: – se utilizan las fotografías porque tratan de una obra artística y o arquitectónica significativa – la imagen solo se utiliza con fines informativos y educativos – la imagen está disponible en internet – la imagen es una copia de baja resolución de la obra original y no es apta para uso comercial – En todos los casos se menciona el autor –




Comment here
Lo siento, debes estar conectado para publicar un comentario.