Square – Brussels Meeting Centre, A2RC Architects
El Centro de Reuniones de Bruselas ocupa un lugar emblemático, enmarcado por edificios de alto carácter simbólico. Su forma neutra, cúbica y diáfana, corona la entrada principal de la plaza como un objeto idílico que se destaca por oposición a las robustas construcciones del Palacio de Congresos. El soporte estructural esbelto y ramificado apoya la idea de transparencia, a la vez que aporta carácter artístico al contorno del cubo. La transparencia diurna se hace imponente por las noches, cuando la luz invade la volumetría, relegando a un segundo plano el resto de los edificios.
Square Centro de Reuniones de Bruselas
Una audaz propuesta arquitectónica a la ciudad ofrece una nueva visibilidad al antiguo «Palacio de Congresos» mediante un emblema poético encarnado en el cubo de cristal que forma la entrada principal a la Plaza, el Centro de Reuniones de Bruselas.
Su estructura en forma de árbol y una estética basada en la transparencia y la luz, evoca irresistiblemente la arquitectura paisajística, se arraiga en la historia y proyecta el «Mont des Arts» en la modernidad. Esta monumentalidad, suave y poética, dialoga con la imagen del jardín. Presente y al mismo tiempo fundiéndose con el paisaje arquitectónico circundante, cambia de materialidad al cambiar la luz y la hora del día. La entrada, en forma de un gran auditorio exterior, permite acceder a la base del cubo, deslizándose a lo largo de la sala de exposiciones bajo el jardín histórico renovado de René Pechère. Una terraza conduce al acceso superior situado en la » Esplanade du Mont des Arts «

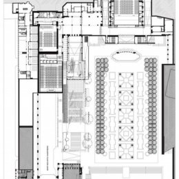
El cubo cuidadosamente articulado contiene escaleras y pasarelas suspendidas en forma de cinta que conectan los diferentes niveles de acceso al complejo de 50.000 metros cuadrados que explota de manera óptima la compleja estructura existente y logra el desafío de aumentar la capacidad y la eficiencia del conjunto. Square ofrece ahora 27 salas de reuniones de 40 a 1.200 para una capacidad total de 3.538, una zona de exposición de 3.670 metros cuadrados divisible en dos entidades distintas con una altura de techo libre de 6 metros, un restaurante y una «brasserie» de 420 plazas.
La reorganización aprovecha al máximo la luz natural en un edificio donde la mayoría de los espacios son subterráneos. El centro de reunión también se beneficia de la presencia de prestigiosas obras de arte que decoran los vestíbulos y colocan colores, que crean un ambiente específico del lugar.

La plaza constituye así una atractiva joya tecnológica en el corazón del » Quartier des Arts » y consume la transformación de un importante sitio histórico por el respeto de su historia y la ambición por su futuro.
El emblema poético del cubo se convierte en el símbolo urbano de un nuevo lugar de comunicación con el mundo.
A2RC Architects
Fotografía: © A2RC Architects / Georges De Kinder
TECNNE | Arquitectura, pensamiento crítico y práctica cultural ©Marcelo Gardinetti 2026 – Todos los derechos reservados.
El contenido de este sitio web se encuentra protegido por la legislación vigente en materia de propiedad intelectual e industrial. Salvo en los supuestos expresamente previstos por la ley, queda prohibida su reproducción, distribución, comunicación pública o transformación sin la autorización previa del titular de los derechos correspondientes. Las imágenes y fotografías reproducidas se utilizan exclusivamente con fines informativos, críticos y educativos, en el marco de la divulgación de obras artísticas y arquitectónicas de relevancia cultural. En todos los casos, proceden de fuentes de acceso público en línea, se presentan en baja resolución, carecen de idoneidad para usos comerciales y van acompañadas de la correspondiente mención de autoría, sin que ello implique desconocimiento alguno de los derechos de propiedad intelectual que les son inherentes. Los esquemas y bocetos que acompañan los artículos han sido elaborados por el autor a partir de material fotográfico preexistente, con una finalidad analítica e interpretativa, reconociendo explícitamente la autoría original de las obras representadas y respetando íntegramente los derechos que las protegen.