Museo de la Ciencia de Trento, Renzo Piano
El Museo de la Ciencia de Trento -MuSe- forma parte del plan de reconversión de una extensión urbana del distrito de Albere, un sitio junto al río que antiguamente albergaba la fábrica de neumáticos Michelin. El diseño del Museo de la Ciencia de Trento está gobernado por la relación con el río y especialmente con la nueva urbanización, que determinó el uso de elementos arquitectónicos similares a los que componen el resto de los edificios del conjunto.
El Museo de la Ciencia de Trento se formula estableciendo una sucesión de elementos opacos y transparentes. El agua, la iluminación y la vegetación desempeñan un papel clave en definición de un entorno natural de los visitantes. Al acrecentar los reflejos de luces y sombras sobre la arquitectura, las convenciones aparentan flotar en una enorme masa de agua.
La forma del edificio representa un gran invernadero tropical que durante ciertos períodos del año permite la relación funcional con las exposiciones al aire libre. Su estructura se ensambla en las capas superiores del techo, mediante una disposición irregular que puede apreciarse desde el parque. Los paneles de acero y vidrio se ubican de modo que superan los límites de cada volumen. De este modo se instaura una grafía semejante a las dolomitas cercanas.
“La idea se basa en el establecimiento de un compromiso perfecto entre la necesidad de flexibilidad y el deseo de una respuesta precisa y coherente con el contenido científico del propio proyecto cultural. Los magníficos temas de exposición en el museo se pueden reconocer en la forma y el volumen de la propia estructura, todo ello manteniendo un diseño flexible, típico de un museo más moderno.”
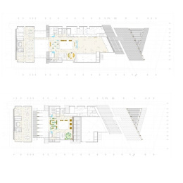
El vestíbulo del Museo de la Ciencia de Trento está alineado con el eje principal del plan de urbanización, atravesando la profundidad del museo hacia el norte. Las dos secciones centrales dan cabida a exhibiciones dedicadas a la historia natural de las montañas y los glaciares. Una serie de espacios de exposición se elevan gradualmente desde el nivel del sótano hasta el techo, para crear un punto de observación sumergido en el medio ambiente. Las amplias zonas de exposición se desarrollan en dos o tres niveles, con techos a gran altura para permitir el montaje de decorados y telones de fondo.
Los servicios educativos se ubican en estructuras contiguas a las zonas de exposición, para promover experiencias interactivas individuales. Las oficinas administrativas y de investigación, los laboratorios científicos y espacios auxiliares para el personal se ubican en los primeros bloques.
Renzo Piano Museo de la Ciencia de Trento Memoria descriptiva
El barrio de Quartiere delle Albere, donde se encontraba una antigua fábrica de Michelin, es ahora una nueva parte de la ciudad de Trento. Esta zona industrial transformada comparte ahora muchas características con el tejido urbano de Trento: la clara jerarquía del diseño, su estratificación funcional y una similitud general en el tamaño de los edificios y los materiales utilizados para su construcción. Este proyecto de renovación urbana ha reconectado la ciudad con su contexto natural, que en Trento está definido por el cercano río Adige y el Monte Bondone. Este nuevo distrito, durante mucho tiempo separado físicamente del centro de la ciudad por el ferrocarril, ahora se siente psicológicamente más cercano. El Quartiere delle Albere es la sede del MuSe, el nuevo Museo de las Ciencias, que sirve para reforzar la identidad cultural de esta zona de Trento.
Los límites del nuevo barrio, que abarca una superficie de 116.300 metros cuadrados, están claramente definidos por el río Adige al oeste y la vía férrea al este. El límite norte limita con el Palazzo delle Albere, una villa-fortaleza renacentista. El proyecto preveía una urbanización mixta para que la zona pudiera ser, en sí misma, autónoma con todos los servicios y funciones implícitos. Los nuevos edificios tienen un claro y unificado impacto horizontal a una escala similar a los del centro histórico de Trento y están situados en el lado oriental del inmenso sitio, dejando la parte occidental abierta para un nuevo parque público frente al río. Los edificios están intercalados con zonas verdes y vías fluviales, un sistema de canales que atraviesa toda la zona y la conecta activamente con el río y el paisaje natural.
La disposición de los edificios comerciales es lineal y sus fachadas «verdes» se convierten en una especie de pantalla natural que oculta las vías por las que están, en gran medida, alineadas. Los edificios residenciales tienen patios abiertos que han sido cortados en ellos de manera que se pueden ver los jardines arbolados internos desde el exterior. Los edificios tienen de cuatro a cinco pisos de altura y sus techos de zinc dan al vecindario una cierta unidad visual. A cada lado del complejo se encuentra un edificio más alto: un edificio multiusos al sur y Museo de la Ciencia de Trento – un gran museo interactivo de ciencias – en el extremo norte. El Museo de la Ciencia de Trento actúa como imán del proyecto y, junto con el Palazzo delle Albere (hoy Museo de Arte Moderno y Contemporáneo), atrae al público y confirma la revitalizada vocación de la zona por la cultura y la recreación. El trazado del plan urbano situó estos dos edificios como sus principales anclas, rodeados de agua y conectados entre sí por los dos caminos principales: uno es un camino peatonal recto a lo largo del este y el otro uno curvo a lo largo de un canal que sirve para conectar los edificios con el parque.
La regeneración del proyecto del Quartiere delle Albere tenía la sostenibilidad como parte integral del diseño. Los edificios utilizan poca energía con el uso extensivo de recursos renovables. MuSe ha recibido la certificación LEED Gold, y todas las residencias y oficinas tienen una clasificación CasaClima de nivel B.
Fotografías: ©Alessandro Gadotti / ©Museo delle Scienze / ©RPBW
TECNNE | Arquitectura y contextos ©Marcelo Gardinetti 2021 Todos los derechos reservados.
El contenido de este sitio web está protegido por los derechos de propiedad intelectual e industrial. Salvo en los casos previstos en la ley, su reproducción, distribución, comunicación pública o transformación sin la autorización del titular de los derechos es una infracción penalizada por la legislación vigente. – Justificación del uso de imágenes y fotografías: – se utilizan las fotografías porque tratan de una obra artística y o arquitectónica significativa – la imagen solo se utiliza con fines informativos y educativos – la imagen está disponible en internet – la imagen es una copia de baja resolución de la obra original y no es apta para uso comercial – En todos los casos se menciona el autor –




Comment here
Lo siento, debes estar conectado para publicar un comentario.