Estación de Bomberos de Dordrecht, René van Zuuk Architekten
La Estación de Bomberos de Dordrecht está situada sobre el borde de un campus educativo. El terreno de forma triangular se encuentra entre una autopista y una escuela. Debido a una exigencia del plan urbano, el edificio debe alcanzar una altura mínima de 12 metros para servir como barrera acústica de los ruidos del tránsito a la escuela.
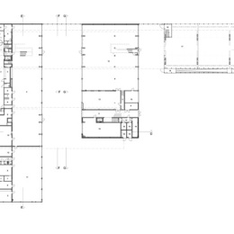
El conjunto se formula mediante 5 volúmenes, tres a nivel del suelo y dos por encima de manera perpendicular. Los volúmenes de planta baja alojan los talleres y garajes separados entre sí por dos calles que permiten el acceso de los vehículos. Cada volumen dispone una larga fachada sobre el interior de la calle, donde puertas de distintas dimensiones responden a las características de los vehículos que forman parte del equipamiento.
Por encima, los volúmenes perpendiculares “encierran” la calle. Por delante, paralelo a la autopista, un volumen de un solo nivel contiene de los talleres menores; en el otro extremo, el cuerpo alcanza dos niveles para alojar las oficinas administrativas y las áreas necesarias para la vida social de los integrantes de la delegación.
Las formas simples que conjugan el edificio son correspondidas con la austeridad de los materiales utilizados en las superficies exteriores. Todas las envolventes fueron reducidas al uso de aluminio perforado y vidrio de tonalidad verde. La planta baja combina policarbonatos y paneles oscuros para establecer una dosificación equilibrada en la iluminación. Los locales del primer piso están revestidos por láminas perforadas de aluminio, para obtener privacidad sin limitar el paso de luz. El segundo piso es completamente transparente para logar un entorno de trabajo luminoso y agradable.
El diseño de la Estación de Bomberos de Dordrecht fusiona una composición de formas simples, semejante a las utilizadas por el movimiento moderno, con tecnologías del siglo XXI. En esta decisión, los autores demuestran que, sin utilizar formas tortuosas y extraños plegados, se puede hacer buena arquitectura.
Estación de Bomberos de Dordrecht Memoria descriptiva
Junto con el GHOR y el ROC en el Parque de Aprendizaje en Dordrecht, se asignó un terreno para una segunda estación de bomberos. Esta «Estación de ayuda multifuncional» se encuentra en el borde de un distrito educativo. Se asignó un terreno triangular a la estación de bomberos, donde el frente donde la línea frontal debe formar un borde de frontera en zigzag. El plan urbano también establece que el incendio debe ser de un mínimo de 12 metros de altura para actuar como una barrera acústica entre la escuela a la que da la espalda y la carretera N3 de enfrente.
El proyecto consiste principalmente en garajes para camiones de bomberos, dos talleres, un área social de 24 horas y un área de oficinas. En total ocupan 5560 m². Además, se proporcionan plazas de aparcamiento para 24 empleados. También hay un garaje más pequeño para el servicio especial de ambulancias y funciones de apoyo que cubre 400m². Un Centro Regional de Formación de 190m² ocupa la parte más pequeña del complejo, que alberga varias salas de examen de aula y de prácticas.
La longitud de las puertas superiores necesarias para todos los vehículos excede la longitud del parámetro de sitio utilizable, la solución se encontró en la creación de dos calles en las que había la cantidad adecuada de espacio para todas las puertas.
Leyendo de izquierda a derecha, los tres volúmenes que alinean las calles son, en primer lugar, los bomberos y el servicio especial de ambulancias; en segundo lugar, el taller, y por último, 24 plazas de aparcamiento. La entrada se encuentra en la fachada oeste, desde aquí se puede acceder a los niveles superiores. Los niveles superiores constan de dos volúmenes perpendiculares; en el primero, frente a la autopista, se encuentran los talleres; en el segundo volumen, que tiene más de dos pisos, se encuentra el área social de 24 horas que está emparejada con el área de capacitación regional. Las oficinas están en el segundo piso.
El concepto de apilamiento de los volúmenes se realza por los detalles utilizados. En la planta baja hay una combinación de policarbonato y paneles sándwich oscuros. El policarbonato translúcido añade una difusión uniforme de la luz en los talleres y garajes. Las 24 plazas de aparcamiento están cerradas por una valla de chapa estirada. El primer piso está revestido con láminas de aluminio perforado que permiten simultáneamente la entrada de luz en los espacios sin comprometer la privacidad de los trabajadores. En el segundo piso, la fachada está completamente abierta con un cristal tintado de color verde para proporcionar un ambiente de trabajo ligero. Hay una paleta industrial que se utiliza para ayudar a leer el edificio como adecuado a su función.
René van Zuuk Architekten
Fotografías: ©Christian Richters
TECNNE | Arquitectura y contextos ©Marcelo Gardinetti 2021 Todos los derechos reservados.
El contenido de este sitio web está protegido por los derechos de propiedad intelectual e industrial. Salvo en los casos previstos en la ley, su reproducción, distribución, comunicación pública o transformación sin la autorización del titular de los derechos es una infracción penalizada por la legislación vigente. – Justificación del uso de imágenes y fotografías: – se utilizan las fotografías porque tratan de una obra artística y o arquitectónica significativa – la imagen solo se utiliza con fines informativos y educativos – la imagen está disponible en internet – la imagen es una copia de baja resolución de la obra original y no es apta para uso comercial – En todos los casos se menciona el autor –




Comment here
Lo siento, debes estar conectado para publicar un comentario.