Universidad central – Colombia, Arq. Daniel Bonilla
La edificación propuesta constituye la primera etapa de una serie de intervenciones recomendadas por el plan maestro para la Universidad Central. El proyecto por lo tanto, parte de una premisa urbana con la que se pretende mejorar la interacción de la Universidad con su entorno inmediato, razón por la cual se propone la plazoleta de acceso como eje articulador de la ciudad, del edificio proyectado y del resto del campus inscrito en la manzana, al cual da acceso.
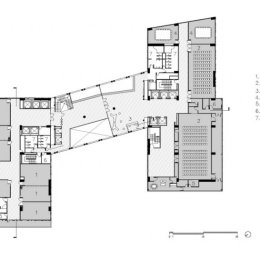
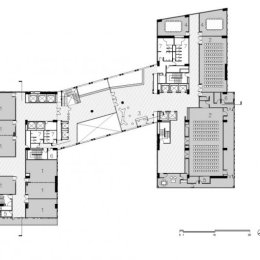
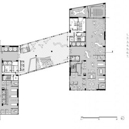
La volumetría propuesta se desarrolló a través de una composición de tres volúmenes, dos de los cuales desarrollaron la máxima altura permitida, mientras el tercero, inscrito entre los dos anteriores y adicionalmente retrocedido respecto al paramento, permitió configurar el espacio de la plaza de acceso sobre la carrera quinta.
Adicionalmente los dos volúmenes de los extremos se desarrollaron a través de la implementación de una estrategia de plataforma / torre, donde las plataformas albergan usos comerciales para propiciar mayores interacciones con la ciudad, así como algunos usos colectivos previstos. Por su parte, en las torres se desarrollaron los usos educativos y administrativos. El campus vertical, volumen central de la composición, se desarrolló bajo la premisa de ser el núcleo de actividades universitarias, un campus único y distintivo. La tipología del “campus vertical” es una estrategia que sirve para multiplicar la cantidad de espacio abierto-colectivo en varios niveles, y al mismo tiempo mitigar la apariencia del tamaño de los edificios adosados.
Finalmente, para garantizar la calidad constructiva y la estabilidad en el tiempo, se contemplaron materiales sobrios a-temporales. Las fachadas de los dos volúmenes laterales se componen con vanos repetitivos, conformados por elementos verticales en concreto, mientras que la fachada del campus vertical es transparente con estructura metálica vista. La transparencia del volumen central se configura como un gran faro del sector, iluminando e irradiado desde el interior.
©Arq. Daniel Bonilla
Investigación y gestión de información: Dolores Gómez Macedo
Ficha técnica
Propietario: Fundación Universidad Central
Área: 26.174m²
Fecha de construcción: 2017- 2019
Diseño arquitectónico: Taller de Arquitectura de Bogotá S.A.S.+ TALLER Architects, Arquitectos Daniel Bonilla, Marcela Albornoz, Pablo Forero y Julián Restrepo.
Equipo de diseño:
Socios: tab>I y TALLER Architects
Concurso: Equipo TAB y Taller 301
Proyecto: Alexander Roa, Juan Camilo Brito, Juan Rubio, Cesar Grisales, Ixa Bachman y Equipo TALLER Architects.
Practicantes: Manuela Orozco, Juan Esteban Canal , Gabriela Barreto, Angélica Ruiz
Gerencia de diseño: Gutierrez Diaz y Cia S.A.
Gerencia de Obra: Payc S.A.S.
Interventoria de Obra: Ingetec S.A. – Gutiérrez Díaz
Construcción:
Diseño estructural: P&P proyectos S.A.S.
Presupuesto: Payc S.A.S.
Estudio de suelos: Alfonso Uribe S y Cia S.A.
Diseño eléctrico: Intgecnology S.A.S.
Diseño hidrosanitario: Plinco S.A.
Cableado estructurado: Intgecnology S.A.S.
Diseño acústico: Acústica, Diseño y tecnología S.A.S. – Arq. Daniel Duplat
Asesoría bioclimática: Natural Cooling S.A.S., – Arq. Agustín Adarve
Diseño de iluminación: ClaroOscuro Lighting Design S.A.S.
Maria Teresa Sierra Consultoría de iluminación y Cia S.A.S.
Jardínes: Paisaje Urbano
Ubicación: Bogotá, Colombia
Fotografías: Alejandro Arango
Ventilación mecánica: Medardo Méndez
Seguridad Humana: Intgecnology S.A.S.
TECNNE | Arquitectura y contextos



