La Casa sul Lago per un Artista constituye una obra significativa y efímera del Racionalismo italiano. Diseñada por Giuseppe Terragni y Pietro Lingeri en 1933, la obra se configuró como un laboratorio de investigación formal y conceptual, donde se ensayaron los principios de una nueva arquitectura doméstica vinculada a la figura del artista moderno. Pese a su corta existencia, su influencia resultó duradera y su estudio permite comprender la evolución del lenguaje racionalista en Italia durante el periodo de entreguerras. El proyecto fue desarrollado en el marco de la V Trienal, celebrada en el Parco Sempione de Milán bajo la dirección de Giò Ponti, cuyo lema “Mostra dell’abitazione” proponía una reflexión sobre la vivienda contemporánea como tipología experimental. Dentro de este programa, la Casa sul Lago fue concebida como un modelo habitable que debía materializar los ideales de funcionalidad, claridad estructural y síntesis entre arte y técnica que el movimiento racionalista defendía.
La V Triennale di Milano de 1933
La V Triennale di Milano, celebrada entre el 6 de mayo y el 30 de septiembre de 1933, representó un hito en la configuración de los discursos arquitectónicos y artísticos del periodo de entreguerras. Su realización consolidó a la Triennale como el principal foro internacional dedicado a la experimentación estética, técnica y social asociada al diseño moderno. Esta edición tuvo lugar por primera vez en el Palazzo dell’Arte, edificio proyectado por Giovanni Muzio con el propósito de albergar de forma permanente las sucesivas exposiciones, y constituyó un punto de inflexión en la institucionalización del racionalismo italiano y en la articulación del diálogo entre arte, arquitectura e industria bajo los ideales de modernidad y progreso.
El contexto político y cultural de 1933 estuvo determinado por la consolidación del régimen fascista, que instrumentalizó la Triennale como medio de legitimación estética e ideológica. En este marco, el discurso arquitectónico se orientó hacia una síntesis entre tradición y modernidad, combinando la herencia formal del clasicismo con la racionalidad técnica propia de la nueva arquitectura. La Muestra Internacional de Arquitectura Racionalista constituyó el núcleo conceptual de la exposición. En ella participaron figuras como Giuseppe Terragni, Luigi Figini, Gino Pollini, Adalberto Libera y Piero Bottoni, cuyas propuestas exploraban la pureza volumétrica, la funcionalidad espacial y la estandarización constructiva como principios operativos de un lenguaje arquitectónico moderno.
Entre las obras expuestas se destacó la Casa E.42, también conocida como Casa del Sabato per gli Sposi, concebida como prototipo de vivienda racional destinada a ejemplificar los valores de eficiencia, higiene y confort doméstico. El proyecto evidenciaba el interés del racionalismo por vincular la arquitectura moderna con las transformaciones sociales del habitar contemporáneo.
Las propuestas urbanísticas presentadas reflejaban la influencia de los Congresos Internacionales de Arquitectura Moderna (CIAM) y de Le Corbusier, reinterpretadas desde una perspectiva nacionalista y mediterránea que buscaba conciliar las aspiraciones internacionales del movimiento moderno con las particularidades culturales italianas.
La V Triennale anticipa la noción de interdisciplinariedad que caracterizaría al diseño italiano de posguerra. Las exposiciones de mobiliario, los experimentos con nuevos materiales y técnicas de iluminación, junto con la cuidada escenografía y el diseño gráfico de las muestras, revelaban una voluntad de situar las artes en el centro del proyecto moderno, superando su función ornamental para convertirlas en instrumentos de transformación cultural y técnica.

La Mostra della Abitazione en la V Triennale di Milano
La Mostra della Abitazione constituyó una de las secciones centrales de la V Triennale di Milano. Esta edición marcó el traslado definitivo de la Exposición Trienal de las Artes Decorativas e Industriales Modernas y de la Arquitectura Moderna desde Monza a Milán, instalándose en el recién construido Palazzo dell’Arte, proyectado por Giovanni Muzio en el Parco Sempione, un edificio concebido expresamente para albergar la nueva sede del certamen.
El Parco Sempione, con una superficie aproximada de 386.000 m², se sitúa entre el Castello Sforzesco y el Arco della Pace, sobre el terreno que antiguamente funcionó como explanada militar del castillo. Diseñado en 1888 por Emilio Alemagna bajo la influencia del paisajismo romántico inglés, el parque se configuró como un espacio urbano de carácter público, destinado al esparcimiento y a las actividades cívicas, circunstancia que lo convirtió en un escenario idóneo para la instalación de los prototipos arquitectónicos de la muestra. Los amplios jardines ofrecieron un soporte físico adecuado para la construcción de unidades experimentales de vivienda, concebidas como ensayos de modernidad en materia de estructura, funcionalidad y confort.
El origen conceptual de la Mostra della Abitazione se enmarca en el creciente interés por una arquitectura moderna italiana capaz de representar la civilización contemporánea y alinearse con el proyecto cultural promovido por la Trienal. Bajo la dirección de Gio Ponti y Mario Sironi, la exposición asumió un carácter didáctico y experimental: se propuso exhibir las transformaciones tipológicas y tecnológicas de la vivienda moderna a través de prototipos construidos en escala real, articulando las funciones expositiva, investigativa y pedagógica del diseño arquitectónico.
La presencia de Osvaldo Borsani evidenció un punto de inflexión en la relación entre arquitectura y diseño industrial. Su participación reflejó la integración entre el mobiliario y la espacialidad arquitectónica, anticipando una noción de vivienda entendida como sistema coherente entre estructura, equipamiento y habitabilidad.
Los proyectos expuestos abordaron la vivienda moderna como problema social y técnico, priorizando la funcionalidad, la economía espacial y la adecuación de los materiales a las nuevas condiciones de vida urbana. Las unidades experimentales levantadas en el Parco Sempione materializaron un laboratorio al aire libre, en el que se exploraron las potencialidades de la modulación estructural, la estandarización constructiva y la relación entre espacio interior y entorno natural. La muestra funcionó como una síntesis del ideario racionalista italiano, expresando la aspiración de una arquitectura capaz de conciliar el rigor técnico con las demandas de la vida moderna.

Casa sul Lago per un Artista
El encargo recayó sobre el Gruppo di Como del MIAR (Movimento Italiano per l’Architettura Razionale), una de las manifestaciones más significativas del racionalismo italiano en el período de entreguerras. Integrado por arquitectos y artistas vinculados a la experimentación formal y estructural, el grupo actuó como núcleo de colaboración en torno a proyectos específicos que buscaban articular una arquitectura coherente con los principios de la modernidad y con las directrices ideológicas del régimen fascista.
El racionalismo italiano tuvo su origen en el Gruppo 7, fundado en 1926 e integrado, entre otros, por Giuseppe Terragni. Esta primera agrupación propuso una arquitectura que conciliara la herencia del clasicismo nacional con los postulados funcionales y constructivos de la era industrial. El MIAR, constituido oficialmente en 1931, asumió un papel de coordinación institucional, con el propósito de consolidar una identidad racionalista común y difundir sus planteamientos a través de exposiciones y publicaciones.
El Gruppo di Como representó una de las expresiones más coherentes de esa corriente. Su composición reunió a figuras centrales del racionalismo como Giuseppe Terragni y Pietro Lingeri, junto a M. Cereghini, Adolfo Dell’Acqua, Gabriele Giussani, Gianni Mantero, Oscar Ortelli y Carlo Ponci. A ellos se sumaron los pintores Marcello Nizzoli y Mario Radice, cuya colaboración permitió establecer un diálogo entre la arquitectura y las artes plásticas en torno a la abstracción geométrica y la noción de espacio constructivo.
La autoría formal del proyecto fue atribuida al grupo en su conjunto, aunque Terragni desempeñó un papel central en la definición espacial y volumétrica del proyecto, caracterizada por un proceso de trabajo intensivo y continuo ajuste de los planos.
La Casa sul Lago se concibió originalmente como una residencia permanente destinada a un pintor y su familia, emplazada en la isla Comacina, territorio recientemente cedido a la Accademia di Brera. No obstante, por razones de viabilidad y de oportunidad expositiva, se optó por construir una versión provisional en el recinto de la Trienal. Esta estructura, ejecutada con una armazón ligera de madera adaptada a la temporalidad del evento, funcionó como un prototipo arquitectónico antes que como una vivienda habitable.
Tras la clausura de la exposición, la casa fue desmontada, reduciendo su existencia física a un breve intervalo de tres meses. Sin embargo, planos, maquetas y fotografías, garantizaron su permanencia como referente teórico y visual en la historiografía del movimiento racionalista.
El carácter efímero del edificio permitió a Terragni y Lingeri explorar con libertad conceptual las posibilidades de una arquitectura entendida como instrumento intelectual, capaz de expresar mediante la pureza geométrica y la articulación volumétrica, una nueva relación entre el espacio de creación artística y el entorno natural del lago.
Fundamentación conceptual y referentes formales
Giuseppe Terragni planteó una revisión crítica de la figura tradicional del artista, alejándola de su caracterización romántica y bohemia para situarla dentro de los parámetros de la modernidad. El artista dejaba de ser un sujeto marginal o excéntrico para convertirse en un profesional integrado en la dinámica intelectual y técnica de su tiempo.
La vivienda debía expresar los valores de la racionalidad, la funcionalidad y la claridad formal, sustituyendo el refugio introspectivo por un espacio de trabajo y vida ordenado, eficiente y luminoso. Terragni concibe esta arquitectura concebida como proyección de un modo de vida moderno, donde el rigor estructural y la economía de medios formales adquieren un valor ético.
En el diseño de la Casa sul Lago per un Artista, Terragni logró articular distintas corrientes de la vanguardia europea dentro de una propuesta coherente y rigurosa. La influencia de los maestros del Racionalismo europeo se manifiesta en la pureza geométrica de los volúmenes, la subordinación de la forma a la función y la supresión de todo elemento ornamental.

La relación con el grupo holandés De Stijl resulta particularmente evidente. La composición volumétrica, basada en la autonomía relativa de los planos y en su diferenciación material y cromática, revela una aproximación neoplástica al espacio arquitectónico. La estructura adquiere un doble carácter: constructivo y figurativo. La profundidad es reinterpretada como una cualidad superficial, y el edificio se transforma en una composición abstracta, donde los planos verticales y horizontales articulan una sintaxis visual precisa y equilibrada.
Estas ideas conceptuales se concretaron en la organización espacial de la casa, cuya modulación y relación entre volúmenes menores y mayores traducen los principios racionalistas en un lenguaje de alta precisión formal. El resultado es una obra que alcanza una claridad expresiva depurada del racionalismo italiano de entreguerras.
Estructura formal y organización espacial
El núcleo innovador de la Casa sul Lago per un Artista se manifiesta en su estructura formal y en la precisión de su orden espacial. El análisis de su composición está sustentada en la dualidad de sus volúmenes, en la especialización funcional de los espacios y en el tratamiento expresivo de las fachadas, concebidas como una superficie de contrastes controlados.

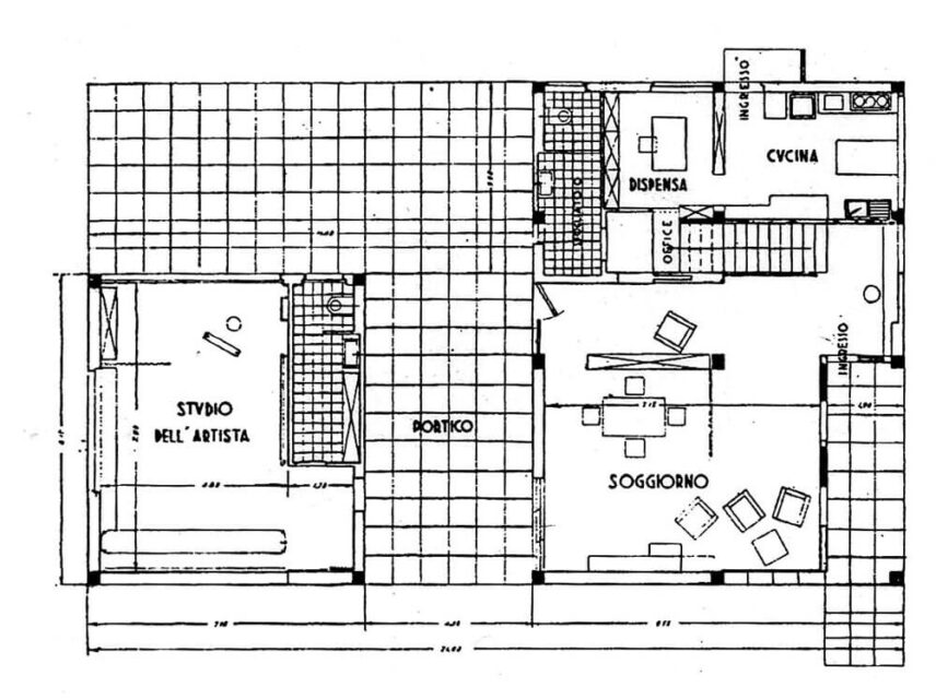
La planta se organiza con claridad en dos cuerpos principales: la residencia familiar y el estudio del artista. Ambos volúmenes, de proporciones y materialidades diferenciadas, mantienen su autonomía compositiva y se vinculan únicamente a través de un pórtico permeable que actúa como elemento de transición. Este umbral define una separación conceptual entre las esferas doméstica y creativa, aislando el ámbito de trabajo y subrayando su carácter introspectivo.

El estudio del artista
El estudio constituye el centro simbólico y funcional del proyecto. Su diseño responde a una reflexión sobre las condiciones lumínicas, espaciales y perceptivas requeridas para la práctica artística. Con una altura de 5,50 metros, el espacio adopta una doble altura que le confiere un carácter monumental dentro de la escala doméstica. La orientación del recinto evita deliberadamente la incidencia solar directa del sur y se abre al norte mediante una pared continua de vidrio-cemento, prolongada en cubierta unos dos metros, con el fin de garantizar una iluminación difusa y constante, idónea para el trabajo plástico.
A pesar del cerramiento del estudio hacia el sur, la disposición general del conjunto está orientado estratégicamente hacia el lago, para permitir la integración visual del paisaje mediante aberturas cuidadosamente moduladas. El entorno natural se incorpora a la percepción interior sin alterar las condiciones lumínicas controladas del taller. En el interior, la presencia de frescos de Mario Radice, miembro del Gruppo di Como, refuerza la relación intrínseca entre arquitectura y artes plásticas, convirtiendo el espacio de trabajo en una síntesis material de ambas disciplinas.

Composición exterior y tratamiento de las fachadas
El exterior del edificio es un ejercicio de composición racionalista basado en la contraposición entre transparencia y opacidad. La fachada principal se estructura en dos sectores de lectura contrastante: a la derecha, la gran superficie translúcida del estudio, construida en vidrio-cemento, actúa como un plano texturado y luminoso; a la izquierda, el volumen compacto de la vivienda, de acabado blanco puro, se presenta cerrado y preciso, con escasas aberturas recortadas con exactitud geométrica.
El pórtico intermedio, parcialmente retranqueado, introduce una nota cromática decisiva: una franja de muro pintada en rojo ocupa aproximadamente una quinta parte de la fachada, profundizando el plano y aportando tensión visual a la composición. Este recurso cromático, junto con la yuxtaposición de volúmenes ligeros y macizos, genera un equilibrio entre masa y transparencia que articula la fachada como un plano pictórico.
La relación con el entorno lacustre se traduce en una cuidadosa orientación y en la calibración de las aberturas. Mientras el estudio se abre hacia el norte y controla la luz mediante el vidrio-cemento, la vivienda aprovecha su orientación sur para establecer vistas enmarcadas del lago, preservando la continuidad visual entre interior y paisaje. Este equilibrio entre introspección funcional y apertura escenográfica define la esencia del proyecto.

Sistema estructural, materialidad y variaciones proyectuales
La elección de los materiales y del sistema estructural refleja el carácter experimental del proyecto y las condiciones específicas de su construcción temporal. Terragni y Lingeri concibieron la obra como un prototipo abierto, susceptible de adaptarse a distintas soluciones técnicas según su contexto de ejecución. Una actitud proyectual que concibe la arquitectura como proceso flexible, donde la idea formal precede a la materialización y puede manifestarse en diferentes configuraciones constructivas sin alterar su esencia conceptual.
Desde las primeras fases de diseño, el proyecto contempló tres versiones estructurales diferenciadas, correspondientes a distintos momentos de su desarrollo:
Diseño original desmontable: La propuesta inicial preveía una estructura metálica ligera, constituida por elementos estandarizados de acero. Este sistema, desmontable y fácilmente transportable, respondía a los principios de industrialización, modularidad y reversibilidad, que formaban parte del ideario racionalista. La posibilidad de montaje y desmontaje sin pérdida de integridad formal convertía la vivienda en un objeto arquitectónico flexible, alineado con la noción moderna de producción seriada.
Estructura temporal de la exposición: Para la V Trienal de Milán de 1933, se adoptó una solución pragmática condicionada por la brevedad del evento: una estructura de madera ligera (gabbia lignea), que permitió levantar el pabellón con rapidez y bajo costo. Este sistema efímero, conservó la lógica volumétrica y espacial del proyecto original, y mantuvo su coherencia conceptual a pesar de las limitaciones materiales.
Versión proyectada: En la versión pensada para su eventual construcción en la isla Comacina, la estructura de acero fue sustituida por una de hormigón armado, que simbolizaba la madurez técnica del Racionalismo italiano. El cambio no alteró la pureza del esquema compositivo: los volúmenes conservaban su autonomía, las superficies su tratamiento cromático y las proporciones su exactitud geométrica. La transición entre sistemas constructivos se resolvía como una evolución lógica del proyecto.
La flexibilidad material se extendió también al diseño interior. El interior se concebía como un marco operativo, un dispositivo que debía acoger la actividad creativa sin imponerle una rigidez formal. Una parte del mobiliario fue ideado por Terragni y el resto fue seleccionado de catálogo, en base a criterios de movilidad y sustitución, de modo que cada elemento podía adaptarse a las necesidades cambiantes del habitante.
La naturaleza efímera de la construcción trienal sirvió como un catalizador que permitió verificar en condiciones reales las hipótesis espaciales y formales de los arquitectos, sirviendo como base para las versiones posteriores. La casa trascendió su materialidad provisional para convertirse en un modelo experimental de arquitectura moderna, donde la idea prevalece sobre la permanencia física y donde la estructura se convierte en un instrumento de exploración intelectual.

Proyección y legado del proyecto
A pesar de su carácter efímero y de la demolición inmediata posterior a la clausura de la V Trienal de Milán, la Casa sul Lago per un Artista es un referente de la arquitectura italiana del siglo XX. La potencia conceptual de la obra se consolidó como una referencia teórica para la definición del espacio moderno destinado al artista.
Tras la exposición, la idea de construir una versión permanente del proyecto se mantuvo activa entre sus autores. En 1935, Terragni y Lingeri retomaron formalmente las gestiones con la Accademia di Brera para ejecutar la casa en su emplazamiento previsto desde el origen: la isla Comacina. Aquella propuesta debía materializar, de modo definitivo, la síntesis entre el espacio doméstico y el ámbito creativo que había orientado la versión expositiva.
Durante la década de 1940, y tras un prolongado proceso administrativo y proyectual, la iniciativa fue finalmente confiada en exclusiva a Pietro Lingeri, quien llevó a cabo la realización de las Case per Artisti en la isla, reinterpretando los principios conceptuales del proyecto original, adaptados a nuevas condiciones técnicas y de programa.
Manifiesto del racionalismo italiano
La Casa sul Lago per un Artista trasciende su condición de pabellón efímero para afirmarse como una obra-manifiesto del Racionalismo italiano. En su breve existencia de apenas tres meses, logró condensar con los principios fundamentales del movimiento moderno: la subordinación de la forma a la función, la precisión geométrica, la síntesis entre estructura y expresión, y la integración armónica entre arquitectura, arte y paisaje.
El proyecto demuestra la voluntad de Terragni y el Gruppo di Como para asimilar críticamente las vanguardias europeas, en particular las lecciones del neoplasticismo de De Stijl, y reinterpretarlas dentro de un lenguaje propio, caracterizado por la disciplina formal y la coherencia conceptual. La relación entre los volúmenes, la modulación cromática y el uso controlado de la luz constituyen una síntesis de los ideales modernos adaptados al contexto italiano de entreguerras.
La Casa sul Lago per un Artista es un referente para el estudio de la modernidad italiana, una arquitectura concebida para la temporalidad que alcanza una permanencia simbólica y proyecta su influencia sobre generaciones posteriores.
©MG
El racionalismo italiano: génesis, desarrollo y consolidación
La génesis del racionalismo italiano en arquitectura se sitúa en 1926, cuando en el Politécnico de Milán se conforma el Gruppo 7, integrado inicialmente por Giuseppe Terragni, Luigi Figini, Gino Pollini, Carlo Enrico Rava, Sebastiano Larco, Guido Frette y Ubaldo Castagnoli, reemplazado al año siguiente por Adalberto Libera. Este colectivo publicó entre 1926 y 1927 una serie de cuatro manifiestos en la revista Rassegna Italiana, donde formuló una crítica sistemática a la tradición historicista y propuso la modernización del lenguaje arquitectónico mediante la incorporación de nuevos materiales, la racionalización del proceso constructivo y la reinterpretación de la herencia italiana a la luz de las vanguardias europeas, particularmente de los principios de Le Corbusier y la arquitectura alemana contemporánea.
La acción programática del grupo no se limitó a la publicación de manifiestos: se materializó en exposiciones y proyectos que buscaron visibilidad pública y legitimación institucional en el contexto de la Italia fascista, interesada en definir una arquitectura estatal moderna. En torno a tres ejes —la modulación estructural, la continuidad histórica y la adopción de principios racionalistas— se articuló la base conceptual y técnica de su propuesta inicial.
Formación y consolidación del MIAR
El Movimento Italiano per l’Architettura Razionale (MIAR), fundado en 1928, constituyó la plataforma más representativa del racionalismo italiano durante el periodo de entreguerras. Integrado por Adalberto Libera, Giuseppe Terragni, Luigi Figini, Gino Pollini, Sebastiano Larco, Carlo Enrico Rava y Guido Frette, entre otros, el MIAR se configuró como un instrumento de articulación teórica y proyectual orientado a actualizar la arquitectura italiana mediante el diálogo con las corrientes internacionales —la Bauhaus, el Constructivismo soviético y el Movimiento Moderno promovido por los CIAM—, pero conservando una voluntad explícita de síntesis con la cultura y la identidad nacionales.
El racionalismo defendido por el MIAR se sustentaba en la lógica estructural, la economía de medios, la sinceridad material y la claridad compositiva. Este programa suponía una ruptura con el eclecticismo académico y con las versiones más retóricas del estilo Novecento, promovido por sectores del régimen fascista. No obstante, la relación entre el MIAR y el poder político fue ambigua: algunos de sus miembros interpretaron el fascismo como una oportunidad de renovación integral de la sociedad, mientras otros rechazaron su deriva hacia un neoclasicismo autoritario y su apropiación instrumental del arte moderno.
Desde 1928, el MIAR reunió a buena parte de los miembros del Gruppo 7 junto a nuevas figuras como Pietro Lingeri, estructurando un frente que buscó institucionalizar el racionalismo mediante exposiciones y campañas destinadas a consolidarlo como estilo oficial del Estado. Esta etapa se caracterizó por la producción de proyectos de fuerte coherencia tipológica, definidos por la pureza volumétrica, la funcionalidad espacial y el rigor estructural.
La V Triennale di Milano (1933): conflicto y disolución
La V Triennale di Milano de 1933 marcó un punto de inflexión en la trayectoria del MIAR, al evidenciar las tensiones entre el racionalismo moderno y la política cultural del fascismo. Celebrada en el Palazzo dell’Arte proyectado por Giovanni Muzio, la exposición incluyó la “Mostra dell’Architettura Razionale”, que reunió maquetas y proyectos de Terragni, Libera, Figini y Pollini. El propósito era exhibir la madurez del movimiento y su capacidad para expresar una identidad nacional moderna a través de la racionalidad técnica y formal.
Sin embargo, la muestra generó una fuerte reacción adversa entre los sectores conservadores y los arquitectos vinculados al Novecento, quienes acusaron al MIAR de adoptar un lenguaje ajeno a la tradición italiana. Las presiones políticas derivadas de esta controversia condujeron a la disolución del movimiento poco después de la Triennale y a la pérdida de apoyo institucional. A pesar de ello, su legado persistió en obras que sintetizan los ideales racionalistas, como la Casa del Fascio (1932–1936) de Giuseppe Terragni en Como, considerada una de las culminaciones del racionalismo italiano.

Bibliografía
Acosta Llera, Francisco. “Las ideas y los instrumentos específicos del proyecto arquitectónico: Giuseppe Terragni frente a la ortodoxia del movimiento moderno.” Tesis, Escuela Técnica Superior de Arquitectura, Universidad Politécnica de Valencia, 2015.
Baglione, Chiara. “Le case di Pietro Lingeri sull’Isola Comacina.” Archalp, no. 3, dic. 2019, pp. 76–85.
Bernardi, Ilaria. “El Grupo 7 en la formación de la arquitectura racionalista italiana: 1927–1930.” Tesis Doctoral, E.T.S. Arquitectura, Universidad Politécnica de Madrid, 2018.
Bonfanti, Ezio, Rosaldo Bonicalzi, Aldo Rossi, Massimo Scolari, y Daniele Vitale. “Arquitectura racional.” Madrid: Alianza, 1979.
Calvi, Evelina. “Proyecto y relato. La arquitectura como narración.” Arquitectonics: Mind, Land & Society, no. 4, 2003, pp. 53–69.
Casanova, Marta. “Giuseppe Terragni. Costruzione e trasformazioni degli edifici di abitazione tra Como e Milano.”
Ciagà, Graziella Leyla, y Graziella Tonon, eds. “Le case nella Triennale dal Parco al QT8. Catálogo de la exposición en el Palazzo della Triennale, 19 mayo – 24 julio 2005.” Milano: Mondadori Electa, 2005.
Ciucci, Giorgio, ed. “Giuseppe Terragni: opera completa.” Con Triennale di Milano, Centro studi G. Terragni, Centro internazionale di studi di architettura Andrea Palladio. Milano: Electa, 1996.
Kallis, Aristotle. “Futures Made Present: Architecture, Monument, and the Battle for the ‘Third Way’ in Fascist Italy.” Fascism, vol. 7, 2018, pp. 45–79.
Lecce, Chiara. “Franco Albini e il progetto dell’effimero (1936–1958): le fonti d’archivio come tracce dell’evoluzione di un método.” AIS/Design. Storia e Ricerche, no. 10, dic. 2017.
Torres Paredes, Edgar A. “La arquitectura como texto: El Danteum, entre la selva y el paraíso.” Tesis, Universidad Politécnica de Catalunya, Escuela Técnica Superior de Arquitectura de Barcelona, 2009.
Zevi, Bruno. “Giuseppe Terragni.” Barcelona: Gustavo Gili, 1981.
Fotografía original: ©Foto Crimella, V Triennale – Mostra dell’abitazione – Casa per le vacanze di un artista sul lago di Giuseppe Terragni e altri
Las imágenes incorporadas en el presente trabajo corresponden a registros fotográficos documentales que han sido mejoradas mediante herramientas de inteligencia artificial con fines meramente ilustrativos y representativos del contenido temático abordado.
TECNNE | Arquitectura y contextos ©Marcelo Gardinetti 2021 Todos los derechos reservados.
El contenido de este sitio web está protegido por los derechos de propiedad intelectual e industrial. Salvo en los casos previstos en la ley, su reproducción, distribución, comunicación pública o transformación sin la autorización del titular de los derechos es una infracción penalizada por la legislación vigente. – Justificación del uso de imágenes y fotografías: – se utilizan las fotografías porque tratan de una obra artística y o arquitectónica significativa – la imagen solo se utiliza con fines informativos y educativos – la imagen está disponible en internet – la imagen es una copia de baja resolución de la obra original y no es apta para uso comercial – En todos los casos se menciona el autor –


