El Studio Kalamar recicló las instalaciones de un antiguo cine para convertirlo en el Teatro Municipal de Murska Sobota, manteniendo la estructura original diseñada por Franc Novak en la década de 1950. El edificio fue adaptado para albergar un teatro y sala de conciertos, preservando su imagen original y mejorando su calidad acústica. El proyecto permitió a la ciudad reforzar su posición como centro regional y conservar un ejemplo excepcional de arquitectura modernista. Se prestó especial atención a los costos de inversión y funcionamiento, logrando reducirlos al mínimo mediante el uso de energía geotérmica.
Murska Sobota Theatre Park, Andrej Kalamar
Studio Kalamar recicló las instalaciones de un antiguo cine para transformarlas en el Teatro Municipal de Murska Sobota. El edificio original, diseñado por Franc Novak en la década de 1950, había dejado de utilizarse tras la construcción de un multicines que cubría las necesidades de la localidad. Para conservar el Theatre Park, se decidió convertir el antiguo cine en un teatro y sala de conciertos, manteniendo su imagen original.
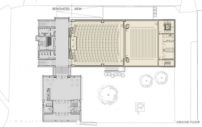
El proyecto del Murska Sobota Theatre Park respetó la estructura exterior diseñada por Novak, modificando únicamente el auditorio y el escenario para mejorar sus proporciones y calidad acústica. Los espacios del vestíbulo y los salones inferiores y superiores fueron renovados, preservando el carácter original del edificio. Las ampliaciones realizadas al edificio fueron tratadas en tonos oscuros para resaltar la estructura original.

Murska Sobota Theatre Park Memoria descriptiva
El Murska Sobota Theatre Park del Parque de Cines fue construido en los años 50 a partir de los planos del arquitecto modernista Franc Novak. Poco a poco se fue deteriorando y se siguió utilizando para proyecciones cinematográficas hasta el nuevo siglo, cuando quedó obsoleto debido a la construcción de un nuevo multicines. Se encontró una solución en un nuevo programa más ambicioso: la conversión en un teatro y sala de conciertos, preservando el edificio designado como punto de referencia con un nuevo programa adecuado para una pequeña ciudad con un gran público de teatro que anteriormente carecía de un espacio teatral adecuado. De esta manera, la ciudad de Murska Sobota refuerza su posición como centro regional y al mismo tiempo conserva el ejemplo excepcional de la arquitectura modernista.
En relación con la estructura existente, se introdujeron dos conceptos para los dos segmentos del proyecto. El esquema funcional de las zonas de entrada ya incluía todos los elementos clave: logia de entrada, vestíbulo y los vestíbulos inferior y superior. Estas partes del Murska Sobota Theatre Park fueron renovadas, conservando la mayor cantidad posible de sustancia original. Los nuevos elementos funcionales se insertaron en el espacio existente como elementos negros concebidos con un mínimo detalle.

La geometría del auditorio existente no se adecuaba al nuevo propósito, por lo que fue sustituido por un nuevo espacio de auditorio correctamente proporcionado y un escenario de teatro técnicamente equipado. Su tamaño y equipamiento permite actuaciones de invitados de todos los teatros del país, así como una futura producción propia con espacio y apoyo técnico a la par de todos los teatros nacionales. El volumen del edificio original está claramente delineado en la estructura del auditorio, el volumen del escenario añadido, vestido con «pantalones renacentistas» muestra una distancia compositiva adecuada, conserva la autonomía de la expresión arquitectónica del edificio original y se integra fácilmente en el entorno natural del parque de la ciudad.
A lo largo del proceso de diseño se prestó especial atención a los costos de inversión y al diseño del edificio con bajos costos de funcionamiento. Con un concepto racional y una gestión transparente de las inversiones, la pequeña ciudad de Murska Sobota recibió el quinto escenario más grande y actualmente mejor equipado del país. Los costos de funcionamiento se redujeron al mínimo al proporcionar energía de calefacción y refrigeración mediante bombas de calor de una instalación geotérmica ya utilizada. Después de seis meses, el costo promedio de funcionamiento para la calefacción, la refrigeración, la ventilación y la iluminación asciende a 3.300 euros al mes. Creemos que cada vez más nuestra energía creativa dentro del proceso de diseño se dirigirá pronto a limitar el consumo de recursos naturales y la responsabilidad medioambiental general.
Andrej Kalamar






Murska Sobota Theatre Park realizado por el Studio Kalamar:
- Antecedentes del edificio:
- Construido originalmente en la década de 1950 como cine por el arquitecto Franc Novak
- Dejó de utilizarse debido a la construcción de un nuevo multicines en la localidad
- Objetivos del proyecto de reconversión:
- Preservar el edificio original como referente arquitectónico
- Adaptarlo a un nuevo programa como teatro y sala de conciertos
- Satisfacer la necesidad de un espacio teatral adecuado para la ciudad
- Estrategia de intervención:
- Mantener la estructura exterior y el carácter original del edificio
- Modificar y reorganizar el interior para mejorar la acústica y las proporciones
- Diferenciar las nuevas adiciones en color oscuro
- Aspectos destacados:
- El vestíbulo y espacios auxiliares fueron reciclados conservando el carácter original
- El volumen del auditorio fue rediseñado para un mejor funcionamiento como teatro
- Se buscó una solución de bajo costo de inversión y funcionamiento
- Impacto en la ciudad:
- Murska Sobota refuerza su posición como centro regional
- Conserva un ejemplo destacado de arquitectura modernista
- Proporciona un espacio teatral de calidad a la comunidad






Drawings: ©Studio Kalamar
Fotografías: ©Miran Kambič
TECNNE | Arquitectura y contextos ©Marcelo Gardinetti 2025 Todos los derechos reservados.
El contenido de este sitio web está protegido por los derechos de propiedad intelectual e industrial. Salvo en los casos previstos en la ley, su reproducción, distribución, comunicación pública o transformación sin la autorización del titular de los derechos es una infracción penalizada por la legislación vigente. – Justificación del uso de imágenes y fotografías: – se utilizan las fotografías porque tratan de una obra artística y o arquitectónica significativa – la imagen solo se utiliza con fines informativos y educativos – la imagen está disponible en internet – la imagen es una copia de baja resolución de la obra original y no es apta para uso comercial – En todos los casos se menciona el autor –




Comment here
Lo siento, debes estar conectado para publicar un comentario.