El Edificio Pixel, de studio505, en Melbourne, es un prototipo de oficina sostenible que combina neutralidad de carbono, balance hídrico y tecnologías constructivas de alta eficiencia. Finalizado en 2010, integra estrategias pasivas y activas de optimización energética, generación renovable in situ, gestión integral del agua y uso de materiales innovadores como el Pixelcrete. Reconocido con las máximas calificaciones en sistemas de certificación ambiental como Green Star y LEED, el proyecto incorpora soluciones desmontables y reciclables, establece un precedente para el diseño arquitectónico con bajas emisiones y alto desempeño ambiental.
Edificio Pixel: Un Hito en Construcción Sostenible
Ubicado en el antiguo solar de la Cervecería Carlton, en Melbourne, Australia, el Edificio Pixel constituye una propuesta experimental desarrollada por la firma Grocon Pty Ltd, destinada a explorar nuevas directrices en la arquitectura de oficinas con criterios de sostenibilidad avanzada. Finalizado en julio de 2010, el inmueble se concibe como un prototipo funcional de la denominada oficina del futuro, donde la reducción drástica de las emisiones de carbono actúa como principio rector de su concepción formal y tecnológica.
Objetivos y logros del proyecto
El planteamiento rector del Edificio Pixel consistió en diseñar y ejecutar la construcción del primer edificio de oficinas a nivel mundial con neutralidad absoluta en carbono y balance hídrico, considerando las emisiones operativas como las emisiones incorporadas derivadas de su proceso constructivo. Este objetivo, de carácter pionero en el contexto australiano y de alcance internacional, se materializó en un prototipo plenamente operativo que ostenta la condición de primer inmueble de oficinas neutro en carbono en el país.
En términos de desempeño ambiental, el edificio presenta una neutralidad de carbono que se sustenta en la ausencia de emisiones asociadas a su consumo energético durante la operación. Además, a lo largo de una vida útil estimada en cincuenta años, compensa la totalidad de las emisiones incorporadas mediante la exportación de excedentes de energía renovable a la red eléctrica.
El segundo eje estratégico, el equilibrio hídrico, se aborda a través de un sistema integral de gestión del recurso, que combina la reducción drástica de la demanda con la captación y reutilización del agua, garantizando así una operación water balanced.
En materia de certificaciones, el Edificio Pixel ha alcanzado calificaciones máximas en los principales sistemas de evaluación de sostenibilidad:
- Green Star, del Consejo Australiano de Construcción Ecológica: puntuación perfecta de 105 puntos.
- LEED, del Consejo de Construcción Ecológica de Estados Unidos: 105 puntos sobre un máximo de 110, superando en diez puntos al inmueble con la marca anterior.
- Evaluación en curso bajo el sistema BREEAM, del Reino Unido, con la expectativa de obtener la puntuación más alta registrada.
El conjunto de estos resultados posiciona al Pixel como un referente tipológico en la investigación y aplicación de estrategias de diseño ambientalmente responsables, capaz de integrar en un solo volumen criterios energéticos, hídricos y de certificación con niveles de excelencia medibles y verificables.


Estrategias de diseño y tecnologías sostenibles
La concepción arquitectónica del Edificio Pixel se fundamenta en una estrategia integral orientada a la reducción de la demanda energética, la utilización de fuentes de combustible con baja intensidad de carbono y la generación in situ de energía renovable, con el propósito de minimizar de forma sustancial las emisiones de gases de efecto invernadero.
Eficiencia energética y reducción de la demanda
El diseño de la envolvente y de los sistemas técnicos del inmueble responde a criterios de optimización energética. La fachada se configura con dispositivos y materiales que reducen la ganancia térmica y la pérdida de calor, minimizando así la energía necesaria para iluminación, calefacción, refrigeración y ventilación.
El sistema de ventilación, basado en dos ventiladores principales para suministro y extracción, opera con un caudal del 100 % de aire exterior, evitando la recirculación. El control de las cargas solares se garantiza mediante un sistema de sombreado externo dispuesto para interceptar la radiación directa.
En materia lumínica, el edificio incorpora control individual de atenuación en luminarias de oficina y utiliza tecnología LED en todas las áreas de uso no administrativo.
Las estrategias de acondicionamiento térmico se apoyan en losas estructurales de hormigón expuestas, que facilitan el enfriamiento pasivo nocturno, y en un intercambiador de calor que recupera energía del aire de extracción para precalentar o preenfriar el aire de admisión. Las losas térmicamente activas actúan como superficies radiantes para calefacción y refrigeración de los espacios.
Fuentes de combustible de baja intensidad de carbono
El sistema energético utiliza gas natural para climatización, seleccionado por su menor factor de emisión (0,21 kgCO₂e/kWh) frente a la electricidad convencional proveniente de la red basada en carbón marrón de Victoria (1,34 kgCO₂e/kWh).
La refrigeración se realiza mediante una enfriadora de absorción a gas con amoníaco como refrigerante, libre de potencial de agotamiento de ozono y sin riesgos asociados a la proliferación de Legionella.
Generación de energía renovable in situ
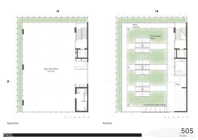
La cubierta integra paneles fotovoltaicos fijos y de seguimiento solar, complementados con aerogeneradores de pequeña escala. Ambos sistemas están conectados a la red eléctrica, que actúa como un sistema de almacenamiento indirecto para los excedentes de energía.
Adicionalmente, un digestor anaeróbico vinculado al sistema de inodoros de vacío produce biogás, que se emplea para alimentar los calentadores de agua ubicados en la cubierta.
Gestión del agua y residuos
La reducción de la demanda hídrica se logra mediante inodoros de vacío de bajo consumo. El agua de lluvia, captada en la cubierta vegetal, se somete a un proceso de ósmosis inversa para su potabilización.
Las aguas grises procedentes de duchas y lavabos se depuran y conducen a lechos de plantas acuáticas, que cumplen una función de riego paisajístico, eliminando prácticamente cualquier vertido de aguas grises al exterior salvo en periodos de máxima pluviosidad.
Las aguas negras son tratadas en el digestor anaeróbico, que extrae metano para calefacción de agua, reduciendo simultáneamente la carga contaminante antes de su descarga controlada al alcantarillado.
Innovaciones en materiales
Entre los desarrollos materiales destaca el Pixelcrete, un hormigón patentado por Grocon cuya formulación reduce en casi un 50 % el carbono incorporado respecto a mezclas convencionales de 40 MPa.
El edificio ha sido proyectado con criterios de desmontaje, asegurando que un porcentaje significativo de su envolvente pueda retirarse y reutilizarse, con el objetivo de disminuir su huella ambiental al final de su ciclo de vida.
Las fachadas norte, oeste y sur del edificio incorporan una envolvente exterior compuesta por un sistema de doble acristalamiento de baja emisividad (low-e), cuya función principal es reducir las ganancias térmicas derivadas de la radiación solar incidente, optimizando así el comportamiento energético global de la edificación. Este recurso, frecuente en arquitectura sostenible de alta eficiencia, actúa como barrera térmica selectiva, permitiendo el paso controlado de luz natural al tiempo que limita la transferencia de calor.
Para el sistema de climatización, se implementó un enfriador de absorción a gas que emplea amoníaco como refrigerante, una solución que, además de minimizar de forma significativa las emisiones de carbono, carece de potencial de agotamiento de la capa de ozono y elimina el riesgo sanitario asociado a la proliferación de Legionella pneumophila en los circuitos de agua.
En el sistema de distribución de biogás, las conducciones originales, fabricadas en cobre y dispuestas en la cubierta, fueron posteriormente revestidas con una capa plástica, con el objetivo de compatibilizar su uso con metano y resolver un problema de interfaz detectado durante la fase de implementación. Finalmente, la cubierta del edificio integra un sistema de techo verde, constituido por especies vegetales autóctonas propias de pastizales victorianos, reintroducidas con criterios de restauración ecológica. El diseño incorpora un ciclo de gestión hídrica cerrado: el agua pluvial captada se destina a la irrigación de la cubierta, y posteriormente es tratada para su reutilización en otras funciones del edificio. En este sentido, el techo verde funciona como un dispositivo que articula vegetación, gestión de recursos hídricos y aislamiento térmico.






Desafíos y significados del Edificio Pixel
La condición experimental del Edificio Pixel, concebido como un prototipo de oficina sostenible, implicó la aparición de desafíos técnicos propios de una obra pionera en su tipología. Estos incidentes aportaron información relevante para la optimización de futuras aplicaciones de las tecnologías implementadas.
Generación eólica
En el sistema de generación eólica instalado en la cubierta, compuesto por turbinas de eje vertical con una capacidad total de 5 kWel, se identificaron incidencias recurrentes vinculadas a la interfaz inversor–red eléctrica. Aunque las turbinas mantenían un funcionamiento mecánico constante, las desconexiones intermitentes de los inversores provocaban la interrupción del flujo energético hacia la red, lo que derivaba en la pérdida de la energía generada.
Las turbinas eólicas, integradas junto con los módulos fotovoltaicos en la estrategia de generación renovable in situ, operan en régimen de conexión a red (grid-tied), utilizando esta última como sistema de almacenamiento virtual para el excedente de producción. Esta configuración permite sincronizar los picos de generación con las demandas máximas del edificio, optimizando así la relación entre producción y consumo.
Ante las dificultades operativas de los inversores, la solución técnica adoptada consistió en establecer un enlace directo entre estos y el sistema de automatización del edificio (BMS). El mecanismo posibilita que, ante una desconexión, se active de forma inmediata una alarma que ordene la reconexión del flujo eléctrico, reduciendo de manera significativa las pérdidas energéticas y garantizando la estabilidad del aporte eólico a la red.
Producción y conducción de biogás
El edificio Pixel integra un sistema de producción y conducción de biogás como parte de su estrategia combinada de generación renovable y gestión integrada de residuos. El núcleo de este sistema es un digestor anaeróbico, emplazado en la planta baja, al que se conectan tanto los inodoros de vacío del edificio como las instalaciones de cocina. Mediante este proceso, la fracción orgánica es degradada en condiciones anaeróbicas, generando metano como subproducto energético.
El metano obtenido se destina a alimentar los calentadores de agua sanitaria ubicados en la cubierta, cuya producción abastece las duchas. El agua gris resultante de estas duchas se canaliza posteriormente hacia las camas de juncos (reed beds), configurando un ciclo de tratamiento y reutilización hídrica integrado. Como medida de respaldo energético, el sistema está conectado a la red de gas natural, que garantiza el funcionamiento del digestor en caso de insuficiencia de biogás.
En la fase inicial de instalación, la conducción del metano hasta la cubierta se realizó mediante tuberías de cobre. Sin embargo, debido a la incompatibilidad química detectada y al riesgo de degradación prematura del material, fue necesario recubrir internamente dichas conducciones con un revestimiento plástico, asegurando así su estabilidad frente a la exposición continua al gas. Esta adaptación técnica refleja la respuesta del proyecto a las particularidades fisicoquímicas del biogás y a los requisitos de durabilidad de la infraestructura.
Si bien la cantidad de biogás generada in situ es reducida, su contribución se considera complementaria dentro de un sistema híbrido que combina esta fuente con la energía fotovoltaica y eólica, maximizando la autosuficiencia y reduciendo la dependencia de recursos externos.
Iluminación y control lumínico
En el diseño lumínico del edificio Pixel, la iluminación se concibió como un componente estratégico para la reducción de la demanda energética, en coordinación con los sistemas de climatización y ventilación. La optimización se abordó mediante una doble estrategia: maximizar el aprovechamiento de la luz natural y aplicar tecnologías de control y atenuación en la iluminación artificial, con el fin de reducir el consumo y mejorar el confort visual de los ocupantes.
En las áreas de oficina, el sistema incorpora luminarias con atenuación individual direccionable (individual addressable dimming), mientras que en los espacios no destinados a oficinas se implementó iluminación LED de alta eficiencia. El control se articula a través de una red DALI (Digital Addressable Lighting Interface), equipada con sensores de luz que regulan automáticamente la intensidad lumínica en función de las condiciones ambientales.
Durante la fase de ejecución, el proveedor introdujo una modificación no prevista en la especificación original: la incorporación de un sistema de iluminación ascendente (uplight) en determinadas luminarias, orientado a mejorar la uniformidad de la distribución lumínica en las áreas de trabajo. Sin embargo, esta adición generó interferencias en la lectura de los sensores DALI, provocando la transmisión de datos erróneos al software de gestión y comprometiendo la calibración prevista. La solución consistió en un proceso de ajuste y recalibración de los parámetros de control, restableciendo así la eficiencia operativa del sistema.
En relación con la luz natural, se realizaron simulaciones mediante herramientas como Radiance y Ecotect para evaluar los niveles de luz diurna. Complementariamente, el sistema de sombreado exterior influye de manera indirecta en la modulación de la iluminación natural en el interior, contribuyendo al equilibrio global del confort lumínico y térmico.
Los inodoros de vacío
La implementación de inodoros de vacío en el edificio Pixel introdujo un componente tecnológico inusual en el contexto australiano, donde este tipo de sistemas sanitarios era poco frecuente al momento de la construcción. Su funcionamiento, basado en la succión neumática de aguas negras mediante una bomba de vacío central, supuso una curva de aprendizaje tanto en la operación como en el mantenimiento preventivo y correctivo.
Paneles fotovoltaicos de seguimiento solar
El edificio Pixel incorpora en su cubierta un sistema híbrido de generación fotovoltaica, compuesto por módulos fijos y paneles con seguimiento solar, con una capacidad instalada total de 6,3 kWp. Los paneles de seguimiento están equipados con un sistema de control automático que regula su orientación en función de la radiación incidente, optimizando así la captación de luz solar a lo largo del día.
Al igual que las turbinas eólicas instaladas en el mismo nivel, los paneles fotovoltaicos operan en configuración conectada a red (grid-tied), utilizando esta como un banco de intercambio energético. Esta estrategia permite exportar el excedente de generación renovable y cubrir déficits puntuales, estableciendo una correlación directa entre los picos de producción —particularmente en horas de alta radiación durante el verano— y la demanda máxima del edificio, vinculada en gran medida a la climatización.
En la fase inicial de operación se detectó un comportamiento anómalo en los paneles de seguimiento: durante el horario nocturno, el sistema orientaba los módulos hacia fuentes de iluminación urbana de alta intensidad, en particular hacia el resplandor nocturno de la ciudad de Melbourne, generando un consumo energético innecesario asociado al movimiento mecánico de los seguidores. La solución técnica consistió en la incorporación de relojes temporizadores, limitando la actividad del mecanismo a las horas de luz diurna y evitando así la desviación operativa.
La experiencia pone de manifiesto la relevancia de implementar procedimientos sistemáticos de prueba, calibración y ajuste desde las fases iniciales de diseño y puesta en marcha. Estos deben contemplar las interacciones, previstas o no, entre el equipamiento y su entorno operativo.
Conclusión
El Edificio Pixel constituye un referente significativo en la arquitectura sostenible contemporánea, al demostrar de forma operativa la viabilidad técnica y funcional de un edificio de oficinas con neutralidad de carbono y balance hídrico. Su diseño integra estrategias pasivas, sistemas de generación renovable, materiales de bajo impacto y gestión eficiente de recursos, configurando un modelo replicable para programas corporativos. Esta síntesis de innovación tecnológica y responsabilidad ambiental confirma la factibilidad de aplicar criterios avanzados de sostenibilidad en el ámbito constructivo e impulsa la adopción de soluciones de alta eficiencia en la industria, estableciendo un precedente para futuras intervenciones comprometidas con la reducción de emisiones y el aprovechamiento óptimo de los recursos naturales.
©tecnne






TECNNE | Arquitectura y contextos ©Marcelo Gardinetti 2021 Todos los derechos reservados.
El contenido de este sitio web está protegido por los derechos de propiedad intelectual e industrial. Salvo en los casos previstos en la ley, su reproducción, distribución, comunicación pública o transformación sin la autorización del titular de los derechos es una infracción penalizada por la legislación vigente. – Justificación del uso de imágenes y fotografías: – se utilizan las fotografías porque tratan de una obra artística y o arquitectónica significativa – la imagen solo se utiliza con fines informativos y educativos – la imagen está disponible en internet – la imagen es una copia de baja resolución de la obra original y no es apta para uso comercial – En todos los casos se menciona el autor –


