Centro de Artes La Coruña, aceboXalonso Studio
Generado a través de una estrategia concisa y resumida, el proyecto indaga la relación de dos programas funcionales contenidos en una misma estructura edilicia. La respuesta es un edificio de forma cúbica, compacto y determinado, formulado a partir de dos materialidades diferenciadas, que abrevian la división de funciones de cada uno de los programas.
Centro de Artes La Coruña
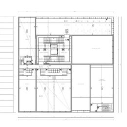
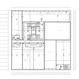
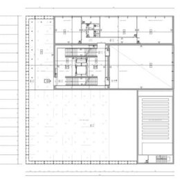
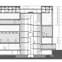
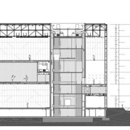
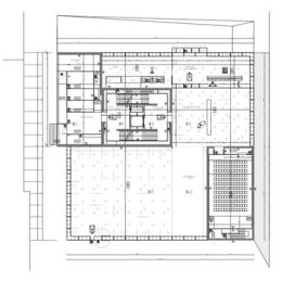
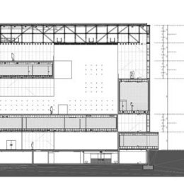
El cuerpo compacto del centro de artes La Coruña se compone de una serie de planos y volúmenes amalgamados, que se disponen mediante un orden predeterminado para conformar espacios de diferentes características. Los muros opacos de textura rustica contienen los espacios donde se desarrollan las actividades del conservatorio de danzas. Apelando al contraste, una serie de planos traslúcidos y/o transparentes montados en una estructura liviana configuran los espacios del Centro de Artes La Coruña donde se alojan las actividades del museo.
La variación cuidada de los elementos que construyen el centro de las artes concede espacios netamente diferenciados. Esta característica no es sólo de percepción táctil, los efectos de luz y sombras que se generan en el interior del edificio por esa diversidad material acentúa la segmentación y confirma de forma implícita la división funcional.
aceboXalonso Centro de Artes La Coruña Memoria del proyecto
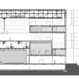
Unir dos programas diferentes (conservatorio de danza y museo) en un único Centro de Arte nos permitía explorar la relación entre dos estructuras ajenas entre sí en todos sus aspectos: organización, percepción, expresión, función, construcción. Con ambos factores podíamos sumar, restar, dividir; elegimos multiplicar. Como siameses unidos por la espalda, nuestros edificios no se conocen entre sí, pero son el mismo cuerpo; la extraña forma de hormigón contiene en su interior el conservatorio, mientras que su superficie exterior define el espacio del museo, lo que queda entre la forma y el límite.
El conservatorio se desarrolla en el interior de una estructura arbórea de cajones de hormigón apoyada en el núcleo central y en la fachada metálica. Cada cajón aloja una parte específica del programa de conservatorio (administración, aulas teóricas, aulas de danza), especializándose por plantas.
Sobre las superficies de hormigón se coloca el museo, que se estructura en seis alturas diferentes conectándose a través de una circulación vertical; su percepción espacial es simultanea, aunque las salas son como ramas de un árbol, contiguas, sucesivas, comunicadas solo por el tronco; este espacio funcionará como un ámbito amplio y versátil donde realizar muchos tipos diferentes de actividades.
Su cerramiento está formado por una doble piel de vidrio impreso sobre subestructura de acero y aluminio. La cubierta del Centro de Artes La Coruña se convirtió en una planta técnica desde la que adaptar el espacio de cada exposición, iluminación, cartelería, acondicionamiento. Un polipasto recorre su cara inferior desplazando las piezas o los montajes a cada una de las salas.
aceboXalonso Studio
Fotografías Centro de Artes La Coruña: ©Héctor Santos-Diez
TECNNE | Arquitectura y contextos ©Marcelo Gardinetti 2021 Todos los derechos reservados.
El contenido de este sitio web está protegido por los derechos de propiedad intelectual e industrial. Salvo en los casos previstos en la ley, su reproducción, distribución, comunicación pública o transformación sin la autorización del titular de los derechos es una infracción penalizada por la legislación vigente. – Justificación del uso de imágenes y fotografías: – se utilizan las fotografías porque tratan de una obra artística y o arquitectónica significativa – la imagen solo se utiliza con fines informativos y educativos – la imagen está disponible en internet – la imagen es una copia de baja resolución de la obra original y no es apta para uso comercial – En todos los casos se menciona el autor –




Comment here
Lo siento, debes estar conectado para publicar un comentario.