Lewis Arts Complex, Steven Holl
La obra de Steven Holl aborda la intencionalidad en la arquitectura como un valor que está por encima de las cuestiones de percepción. Holl cualifica la intención como un método que lo distingue de la fenomenología pura que se manifiesta en las ciencias naturales. Cualquiera que sea la percepción de una obra construida – ya sea problemática, intrigante o banal – la energía mental que la produjo es, en última instancia, deficiente, a menos que se articule la intención (Holl, 2008: 41).
Marcelo Gardinetti | 20 de octubre de 2020
Para Steven Holl, los elementos que se perciben en el interior de una habitación y los que se observan a través de una ventana comienzan a fusionarse perceptualmente. Se produce una superposición del primer plano, el punto medio y la vista lejana que es un tema crítico en la creación del espacio arquitectónico1. Steven Holl entiende que esos fenómenos mentales tienen una existencia real, así como intencional, y que, por encima de cualquier entidad físico-espacial, necesitamos entender las motivaciones intelectuales y espirituales que hay detrás de ella. Esta dualidad de intención y fenómeno es como la interacción entre lo objetivo y lo subjetivo o, más bien, el pensamiento y el sentimiento. El reto de la arquitectura es estimular tanto la percepción interna como la externa; realzar la experiencia fenoménica y al mismo tiempo expresar el significado; y desarrollar esta dualidad en respuesta a las particularidades del lugar y la circunstancia» (Holl, 2008:42).
Esta reflexión, que indaga experiencias de percepción relativas a las decisiones arquitectónicas en el ámbito de la «fenomenología de la arquitectura», recuerda de Maurice Merleau-Ponty el concepto de realidad «intermedia» (l’entre-deux)2, el «terreno en el que es universalmente posible reunir las cosas». (Pombo, 2013,184)
El análisis del impacto formativo de los argumentos fenomenológicos de Maurice Merleau-Ponty sobre la arquitectura de Steven Holl ilustra, de hecho, cómo un retorno a la fenomenología puede ampliar el horizonte del discurso y la práctica arquitectónica. (Yorgancioglu,2007,26) Steven Holl afirma que «La arquitectura tiene el poder de inspirar y transformar nuestra existencia cotidiana. El acto cotidiano de apretar una manilla de la puerta y abrirla en una habitación iluminada puede llegar a ser profundo cuando se experimenta a través de una conciencia sensibilizada. Ver, sentir estas fisicalidades es convertirse en el sujeto de los sentidos» (Holl, 2008: 40).
Por lo tanto, la obra de Holl permanece dentro del marco teórico de la fenomenología de la percepción, porque combina la realidad «intermedia» con la intencionalidad (Pombo,2013,189). En tal sentido, la fenomenología tiene el potencial de poner las «esencias de nuevo en existencia» al «re-conseguir un contacto directo y primitivo con el mundo» a través del reino de las experiencias perceptivas (Yorgancioglu,2007,27). Este sentir induce a Steven Holl a robustecer esos atributos a través de la experiencia de la forma arquitectónica, entendida como espacios que conjugan materiales luz y color.

Lewis Arts Complex, Steven Holl
En el Centro Lewis para las Artes, Steven Holl plantea una nueva puerta de acceso al campus, al tiempo que maximiza la porosidad y el movimiento desde todos los lados, con el objeto de provocar curiosidad e interacción de la comunidad local con la Universidad. Holl aferra el edificio a una relación entrelazada entre el sitio y la ambiente, habitando lo visible y lo invisible.
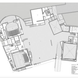
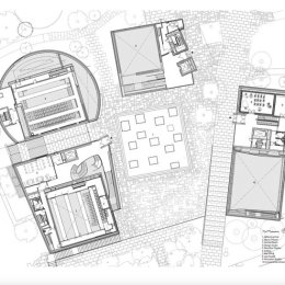
El programa incluye un edificio de teatro y danza, un edificio de artes y un edificio de música; los tres edificios están integrados en forma subterránea, rodeando un foro abierto que permite vistas a los espacios de danza, teatro y ensayo orquestal desde el acceso.
El edificio de Teatro y Danza se desarrolla de acuerdo a una idea de «cosa dentro de una cosa»: la caja negra de acero del teatro y las salas de danza de espuma de aluminio y madera blanqueada están contenidas en dentro de un marco general de hormigón, conectadas a través de una «escalera de baile». El edificio de arte está compuesto por una torre de piedra que se conecta con el histórico Blair Arch de Princeton. El edificio de música desarrolla una idea de «suspensión», con salas de ensayo individuales suspendidas sobre varillas de acero por encima de la gran sala de orquestal; estas cámaras de madera individuales tienen una calidad resonante por estar acústicamente separadas entre sí.
Steven Holl compone el espacio arquitectónico con referencia al sujeto; es decir, toma en cuenta que las superficies que definen el espacio se perciben de diferente modo cuando el espectador cambia de posición. Esta característica es utilizada como una herramienta de diseño para definir el espacio arquitectónico siguiendo las percepciones espaciales del hombre en movimiento.

Steven Holl Memoria descriptiva
El Centro Lewis en la Universidad de Princeton, se propone llevar las artes a alturas aún mayores ampliando significativamente los espacios de actuación, ensayo y enseñanza de las artes en nuevas instalaciones de última generación. El complejo crea una nueva entrada, dando forma al espacio del campus mientras maximiza la porosidad y el movimiento.
El complejo de las artes, diseñado por Steven Holl Architects en asociación con BNIM, reúne los programas de danza, teatro, teatro musical y el Princeton Atelier del Lewis Center for the Arts, y la ampliación de las instalaciones de enseñanza e investigación del Departamento de Música en el New Music Building. El complejo comprende el Edificio de Danza y el Teatro Wallace; la Torre de las Artes, que incluye la Galería Hurley, oficinas administrativas y estudios adicionales; y el Edificio de la Nueva Música. Los tres edificios están integrados bajo tierra en un Foro, un espacio abierto de reunión interior de 8.000 pies cuadrados que sirve a las diversas sedes artísticas del complejo. Encima del Foro hay una plaza al aire libre con una piscina reflectante. Los tragaluces de la piscina filtran la luz natural hacia el Foro que está debajo.
Alentando la curiosidad y la interacción, la nueva plaza de artes tiene vistas a los espacios de práctica de danza y teatro y al espacio de ensayo de la orquesta. Como una invitación pública abierta, este espacio de entrada tiene como objetivo conectar a la comunidad local con la Universidad El Edificio de Danza y Teatro Wallace se desarrolla de acuerdo a la idea de una «cosa dentro de una cosa».
El teatro de caja negra está compuesto de acero, mientras que los teatros de danza son de aluminio espumado, madera lavada blanca y hormigón formado por tablas. Una «escalera de baile» conecta todos los niveles.
La Torre de las Artes se desarrolla con un concepto «incrustado», su torre de piedra conectando con las proporciones del histórico Blair Arch de Princeton. El Edificio de la Nueva Música se desarrolla según una idea de «suspensión». Sobre la gran sala de ensayos de la orquesta, las salas de práctica individuales están suspendidas sobre barras de acero.
Acústicamente separadas, estas cámaras de madera individuales tienen una calidad resonante. La estructura de hormigón de los tres edificios está revestida de una gruesa piedra de Lecce de 21 millones de años de antigüedad extraída en Lecce, Italia.
El nuevo complejo de artes lleva el nombre y fue posible en parte gracias a una donación de 101 millones de dólares a la Universidad hecha en 2006 por el difunto Peter B. Lewis, de la clase de Princeton de 1955 y antiguo fideicomisario de la Universidad.
Steven Holl
Notas:
1 Debemos considerar el espacio, la luz, el color, la geometría, el detalle y la materia como un continuo experiencial. Aunque podemos desmontar estos elementos y estudiarlos individualmente durante el proceso de diseño, se funden en la condición final, y en última instancia no podemos romper fácilmente la percepción en una simple colección de geometrías, actividades y sensaciones»‘ (2008: 45),
2 En La Structure du Comportement (1942) [La Estructura del Comportamiento] Merleau-Ponty es crítico con el pensamiento de survol [pensamiento general], considerando la conciencia y el cuerpo como universos separados. En Phénoménologie de la Perception (1945) [Fenomenología de la Percepción] Merleau-Ponty explica la experiencia primordial, la evidencia perceptiva como el fundamento que une el cuerpo y el mundo, presentando los argumentos para una experiencia humana integral. Este filósofo busca un orden de la realidad que no presupone la dualidad: lógica/percepción, conciencia/cuerpo, cuerpo/mundo. Tal orden de la realidad, en la Fenomenología de la Percepción se denomina l’entre-deux (entre dos). El individuo está enredado en el mundo físico, desarrollándose en relación con él: la existencia no es una cosa, ni la conciencia pura. El pensamiento no está separado de sus raíces corporales sensoriales. De hecho, el espacio se define según los movimientos del cuerpo. El cuerpo otorga significado al mundo, transformándolo en un significado vivido y experimentado. (Pombo, 2013,184)
Bibliografía
Holl, Steven, Intertwining (New York: Princeton Architectural Press, 1998)
Holl, Steven, Juhani Pallasmaa, Alberto Perez-Gomez “Questions of perception. Phenomenology of Architecture” (San Francisco: William Stout Publishers, 2008)
Holl, Steven, “Parallax” (New York: Princeton Architectural Press, 2000)
Pombo, Fátima, “Architecture and Chiasmus. The resonance of landscape” Revista KEPES Año 10 No. 9 (2013), 183-198
Yorgancioglu, Derya, “Steven Holl: A translation of phenomenological philosophy into the realm of architecture”, en Iris Aravot and Eran Neuman (eds.) Some Approaches and Interpretations of Phenomenology in Architecture, (The Technion – Israel Institute of Technology, Faculty of Architecture and Town Planning, I.I.T. Haifa, Israel, 2007),25-27.
Fotografías: ©Paul Warchol
Steven Holl Architects Lewis Arts Museum
TECNNE | Arquitectura, pensamiento crítico y práctica cultural ©Marcelo Gardinetti 2026 – Todos los derechos reservados.
El contenido de este sitio web se encuentra protegido por la legislación vigente en materia de propiedad intelectual e industrial. Salvo en los supuestos expresamente previstos por la ley, queda prohibida su reproducción, distribución, comunicación pública o transformación sin la autorización previa del titular de los derechos correspondientes. Las imágenes y fotografías reproducidas se utilizan exclusivamente con fines informativos, críticos y educativos, en el marco de la divulgación de obras artísticas y arquitectónicas de relevancia cultural. En todos los casos, proceden de fuentes de acceso público en línea, se presentan en baja resolución, carecen de idoneidad para usos comerciales y van acompañadas de la correspondiente mención de autoría, sin que ello implique desconocimiento alguno de los derechos de propiedad intelectual que les son inherentes. Los esquemas y bocetos que acompañan los artículos han sido elaborados por el autor a partir de material fotográfico preexistente, con una finalidad analítica e interpretativa, reconociendo explícitamente la autoría original de las obras representadas y respetando íntegramente los derechos que las protegen.
©TECNNE, publicado en 2017, actualizado en 2020
