Ahn Jung-geun Memorial Hall, D Lim Architects
El Ahn Jung-geun Memorial Hall se encuentra alrededor de los bosques en la montaña Nam (Namsan), en el centro de Seúl, Corea. Ahn Jung-geun es uno de los patriotas famosos de Corea, un activista por la independencia coreana
Ahn Jung-geun Memorial Hall Simbolismo
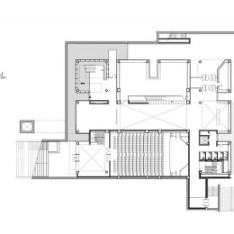
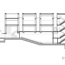
La sala conmemorativa se configura en un conjunto de 12 columnas que se disparan desde una base hundida. El número 12 simboliza los héroes anónimos de Dongeui Danjihoe – una sociedad secreta cuyo nombre se podría traducir como Sociedad de Patriotas – organizada originalmente por Ahn. Los miembros rompieron sus dedos meñiques en 1909, en una demostración de su lealtad y determinación para el movimiento de liberación.
Al lado del sitio están los restos de un antiguo santuario de guerra, donde los japoneses adoraban a sus señores de la guerra y los espíritus durante la época colonial. Después de haber desenterrado ese recordatorio de vergüenza y humillación, el nuevo edificio se alza triunfante sobre el sitio. El área es cuadrada y pequeña, donde los nuevos puestos de la sala conmemorativa se vacían de su tierra, en tamaño igual al volumen del nuevo edificio.
Las columnas representan la tierra, un símbolo de la alianza de la que surgió Ahn. Durante el día, las 12 enormes columnas de pie se alzan como tabletas de espíritu que se eleva sobre el antiguo emplazamiento del santuario de guerra. Por la noche, se convierten en 12 luces brillantes que simbolizan su enseñanza.
Ahn Jung-geun Memorial Hall Conmemoración
Una vez dentro, la entrada conduce a los visitantes a las rampas situadas un nivel por debajo de los alrededores. A medida que los visitantes caminan sobre las rampas, verán el legado de obras de escritura impresas a mano en la pared negra a la derecha de Ahn. El camino se extiende hasta la parte posterior, donde se encuentra la entrada principal. El paseo es un viaje largo y sereno que conecta el presente con el pasado. Sirve como un conducto entre los tiempos, como enlace al espacio de exposición al aire libre de la sala. La atención de los visitantes, naturalmente, se mueve desde el mundo real al espacio conmemorativo y la caligrafía circundante a través de un ajuste en la variación del nivel.
Dedicado a Ahn Jung-geun, el exterior de esta nueva instalación se envuelve alrededor de una forma consistente de textura semi-opaco. En el interior, hay una diversidad interesante de aperturas y cierres, que ofrecen diversas funciones. En lugar de favorecer espacios dramáticos oscuros, el edificio crea diversos espacios brillantes, dentro de las 12 cajas luminosas. La capa exterior translúcida permite la iluminación de paisaje que proviene del propio edificio y ayuda a mantener el significado simbólico de la sala conmemorativa. Después de ver la sala de exposición, los visitantes son conducidos al exterior del edificio por la escalera sur, que ofrece una hermosa vista del río Han.
Ahn Jung-geun Memorial Hall Traslucidez
La razón principal para la selección de doble vidrio en forma de U era el ambiente de Namsan y la forma del edificio. Si la piedra o el metal de revestimiento cubrían la forma extremadamente simplificada del edificio, se sentiría frío y coercitivo. Los muros cortina transparentes son impropios de la función del edificio. La textura translúcida de vidrio en forma de U acentúa el verde de los árboles de los alrededores, que expresa un carisma suave. Ventanas transparentes se instalaron entre las cajas para hacer hincapié en la estructura de 12 columnas, diseñado para que los visitantes puedan disfrutar de las magníficas vistas de Namsan en un pequeño espacio de descanso.
Ahn Jung-geun Memorial Hall Favorable al medio ambiente
La Ahn Jung-geun Memorial Hall está rodeado de árboles de 40 pies de altura en el monte Nam. Una forma de cubo lo más compacta posible con la mitad de su volumen por debajo del nivel del suelo, lo que evita ser más alto que los árboles alrededor. Las pieles del edificio son de doble capa. En el salón de actos, el policarbonato se instala con 600 mm de separación de vidrio en forma de U doble para mantener estable la temperatura en el interior.
D Lim Architects©
Fotografías: ©Youngchae Parque
TECNNE | Arquitectura y contextos ©Marcelo Gardinetti 2021 Todos los derechos reservados.
El contenido de este sitio web está protegido por los derechos de propiedad intelectual e industrial. Salvo en los casos previstos en la ley, su reproducción, distribución, comunicación pública o transformación sin la autorización del titular de los derechos es una infracción penalizada por la legislación vigente. – Justificación del uso de imágenes y fotografías: – se utilizan las fotografías porque tratan de una obra artística y o arquitectónica significativa – la imagen solo se utiliza con fines informativos y educativos – la imagen está disponible en internet – la imagen es una copia de baja resolución de la obra original y no es apta para uso comercial – En todos los casos se menciona el autor –




Comment here
Lo siento, debes estar conectado para publicar un comentario.