Módulo de información en Puebla

Módulo de Información en Puebla, Rodrigo Jaspeado y Enrique Betancourt 

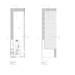
El módulo de información se concibe como una construcción flotante soportado por columnas de hormigón sobre la topografía natural.  Está constituido por un esqueleto metálico liviano revestido en dos lados con vidrio que enmarcan el paisaje circundante y la ciudad de Puebla, y en las otras dos con madera.

Se accede al módulo de información mediante una rampa metálica que parte de la plaza pública construida en la parte plana del terreno. Una escalera exterior conduce al segundo nivel, donde una terraza permite visualizar los fuertes de Loreto y Guadalupe. Los módulos de servicio fueron construidos en pabellones independientes que se emplazan entre el edificio principal y la plaza pública.

Para anexar una propuesta cultural, el interior del módulo de información fue diseñado como planta libre, con muros de colores neutros que posibilitan el armado de exposiciones.

“Esta intervención nos ha permitido crear una nueva morfología del terreno, dando lugar a nuevas zonas ajardinadas y acceso peatonal. Por lo tanto, la parte central de la zona se ha habilitado para la localización de Info-Box”.

[nggallery id=810]

Módulo de información en Puebla Memoria descriptiva

El cuarto concurso internacional Arquine 2002 fue convocado por el gobierno del estado de Puebla mediante el Consejo Cultural 5 de Mayo, el Museo de Arquitectura de INBA y el colegio de Arquitectos de la Ciudad de Puebla. Este concurso consistía en diseñar un nuevo módulo de información el cual se ubicaría en el acceso del parque de Los Fuertes. Diez años después (2012) gracias a las gestiones del Gobierno Estatal actual y a la Secretaría de Infraestructura, fue posible la construcción de este edificio.

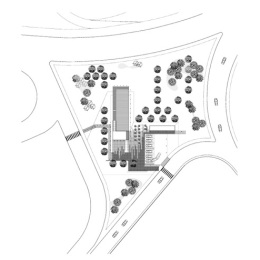
El Módulo de información está ubicado en el acceso principal del Centro Cultural 5 de Mayo, sobre el Blvd. Ignacio Zaragoza. Al exterior, el edificio cuenta con una plaza pública, estacionamiento para patrullas de vigilancia, un módulo de baños públicos y cuarto de máquinas.

De inicio, se realizó una intervención vial en el acceso del Centro Cultural, creando dos nuevas entradas viales y peatonales así como una salida la cual conecta directamente con el Boulevard Ignacio Zaragoza. Esta intervención nos permitió crear una nueva morfología del terreno, abriendo espacio a nuevas áreas verdes y accesos peatonales. Es así como la parte central del terreno se habilitó principalmente para la ubicación del Info-Box.

[nggallery id=811]

El proyecto del módulo de información está concebido como una edificación flotada jugando con la topografía natural del terreno, una estructura ligera de acero, soportada por pilotes de concreto creando un esqueleto que posteriormente se forró en madera. El edificio genera circulaciones peatonales perimetrales las cuales conducen suavemente hacia la plaza pública la cual se encuentra en la zona frontal del conjunto.

La plaza pública se creó a través de una plataforma cubierta con piezas de concreto prefabricado en color gris y negro de 45cm x 90cm, las cuales se mantuvieron regulares en donde el nivel es continuo y se desplazaron en las áreas donde la pendiente del terreno comenzaba a variar, estas últimas piezas se mezclaron con la vegetación que aparece en líneas paralelas al edificio principal. El proyecto de paisajismo generó células de vegetación las cuales concentran especies endémicas y crean espacios verdes dentro del conjunto penetrando linealmente la plaza pública. Los baños públicos se resolvieron a través del diseño de un módulo independiente, ubicado entre la plaza y el edificio principal, construido con un sistema tradicional de hormigón y tabique forrados de mármol martelinado de la región en piezas de 60cm x 20cm verticales.

La materialidad del info-box se resolvió con una estructura metálica para agilizar los tiempos de edificación y con un forro acristalado y duela de madera teka en muros. Este último material se utilizó también en el piso interior del edificio. El acceso al módulo de información se resolvió a través de una rampa metálica con piso de piedra para que cualquier persona pudiera acceder fácilmente.

Al interior del Info-Box se generan visuales hacia la Ciudad de Puebla y hacia la gaza que esta sobre el Boulevard Ignacio Zaragoza, en el cual está ubicada una escultura con cañones originales de la batalla del 5 de Mayo, los cuales se aprecian de manera cercana. Además diseñado en su interior para exhibiciones se compone perimetralmente de ventanales que logran al exterior una circulación conformada con rejilla irving la cual lleva una escalera exterior que conduce al segundo nivel del edificio en donde se ubica un mirador, en donde se tienen distintos puntos de observación, entre ellos los fuertes de Loreto y Guadalupe.

El edificio se planeó con un área de planta libre al interior para facilitar el montaje de cualquier tipo de exposición y se seleccionaron muros prefabricados de color neutro para poder intervenirlos con algún diseño de museografía. Como parte de un edificio de equipamiento dentro del nuevo Complejo Cultural se compactaron las áreas de servicios y bodegas privilegiando a las áreas de exhibición.

Jaspeado y Betancourt

[nggallery id=812]

Fotografías: ©Patrick López Jaimes

TECNNE | Arquitectura, pensamiento crítico y práctica cultural ©Marcelo Gardinetti 2026 – Todos los derechos reservados.
El contenido de este sitio web se encuentra protegido por la legislación vigente en materia de propiedad intelectual e industrial. Salvo en los supuestos expresamente previstos por la ley, queda prohibida su reproducción, distribución, comunicación pública o transformación sin la autorización previa del titular de los derechos correspondientes. Las imágenes y fotografías reproducidas se utilizan exclusivamente con fines informativos, críticos y educativos, en el marco de la divulgación de obras artísticas y arquitectónicas de relevancia cultural. En todos los casos, proceden de fuentes de acceso público en línea, se presentan en baja resolución, carecen de idoneidad para usos comerciales y van acompañadas de la correspondiente mención de autoría, sin que ello implique desconocimiento alguno de los derechos de propiedad intelectual que les son inherentes. Los esquemas y bocetos que acompañan los artículos han sido elaborados por el autor a partir de material fotográfico preexistente, con una finalidad analítica e interpretativa, reconociendo explícitamente la autoría original de las obras representadas y respetando íntegramente los derechos que las protegen.


 

Marcelo Gardinetti
Marcelo Gardinetti

Arquitecto, editor y director de Tecnne desde 2011.
Investigador en teoría y crítica de la arquitectura moderna y contemporánea.
La Plata, Argentina.
ORCID: https://orcid.org/0000-0002-6679-7951

Artículos: 1213

Deja un comentario