IT University Copenhagen, Henning Larsen Architects
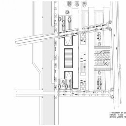
El plan maestro para el área se basa en una estructura lineal que corre de sur a norte. Esta estructura básica se ha diseñado con tres bandas transportadoras de tres temas urbanos diferentes. Las tiras son cortadas por carreteras en el eje transversal del Amager Fælledvej. Las conexiones entre los edificios se encuentran en el eje transversal perpendicular a las áreas abiertas y ajardinadas.
IT University Copenhagen
La IT University Copenhagen surge abierta y acogedora, formando un marco alrededor de los estudiantes, profesores e investigadores de la universidad. Un edificio en diálogo espacial con su entorno y, al mismo tiempo, abierta en respuesta a la ciudad, dejando que las actividades universitarias interactúan como una activo para el espacio vecino.
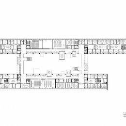
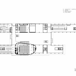
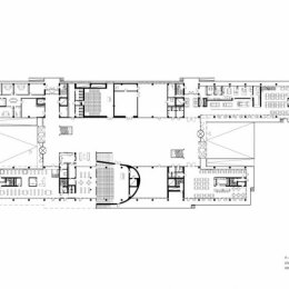
El concepto del diseño de la IT University Copenhagen es la de una red espacial. Un espacio virtual en la que cada función se coloca en tres dimensiones alrededor de un panóptico central. La sala en la zona de recepción ofrece una visión completa de la universidad. La estructura espacial permite que las actividades en todos los niveles se comunican entre sí y con los servicios comunes situados a nivel del suelo.
Todo el volumen de la IT University Copenhagen tiene una piel de metal que se extiende alrededor de los dos edificios largos y el panóptico central. Las fachadas este y oeste tienen pantallas de vidrio con diferentes grados de opacidad / transparencia. Algunos de ellos están grabados o serigrafiados, otros abiertos como respiraderos para trabajar con una estrategia climática global del edificio.
© IT University Copenhagen, Henning Larsen Architects
Fotografias y dibujos: © Henning Larsen Architects
Créditos
Proyecto : IT University Copenhagen
Ubicación : Ørestaden, Dinamarca Cliente : Ministerio de Educación Período de construcción : 2001-2004 Superficie construida : 19.000 m2 Valor del proyecto : 27,6 mill. GBP Tipo de asignación : 1 º premio en el concurso por invitación 2000
Arquitecto : Henning Larsen Architects
Ingeniero : Carl Bro Paisaje arquitecto : Svend Kierkegaard Coste : 42 millones de € Fotos : Adam Mork / Derechos de Autor : Henning Larsen Architects
TECNNE | Arquitectura y contextos ©Marcelo Gardinetti 2025 Todos los derechos reservados.
El contenido de este sitio web está protegido por los derechos de propiedad intelectual e industrial. Salvo en los casos previstos en la ley, su reproducción, distribución, comunicación pública o transformación sin la autorización del titular de los derechos es una infracción penalizada por la legislación vigente. – Justificación del uso de imágenes y fotografías: – se utilizan las fotografías porque tratan de una obra artística y o arquitectónica significativa – la imagen solo se utiliza con fines informativos y educativos – la imagen está disponible en internet – la imagen es una copia de baja resolución de la obra original y no es apta para uso comercial – En todos los casos se menciona el autor –




Comment here
Lo siento, debes estar conectado para publicar un comentario.