Exit, casa que agita el valle

Casa M, Exit Architects

Este valle sigue siendo bastante conservador. De hecho, esta es la primera casa en la zona que adopta un aspecto moderno que era provocador para algunos vecinos. Debido al presupuesto, en Casa M elegimos madera de abeto para el interior y el exterior, que es la madera local más común. La construcción de madera también permitió un alto grado de prefabricación.

Exit Casa M

Decidimos un techo plano por dos razones: las proporciones de Casa M y los costos. También como una cuestión de principios, porque creemos que la arquitectura debe responder a las circunstancias de su tiempo.

El tamaño y la altura de Casa M fueron determinados por las regulaciones locales. Para los clientes fue un lujo tener un balcón, que no habían solicitado inicialmente. Esto les permite sentarse y leer un libro en el sol, protegido del viento, y disfrutar de las magníficas vistas.

[ngg src=»galleries» ids=»1236″ display=»basic_thumbnail» images_per_page=»12″ slug=»casa m»]

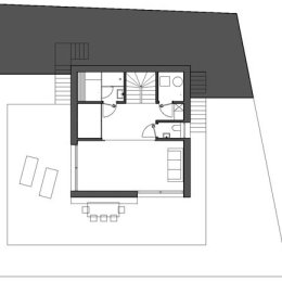
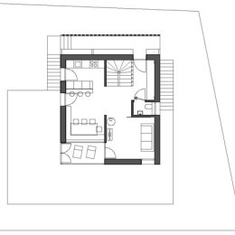
El porche de Casa M crea un espacio entre el interior y el exterior, y es muy útil cuando los propietarios regresan, proporcionando espacio para quitarse sus botas y abrigos. También proporciona un lugar para hablar con los vecinos sin tener que invitarlos. La idea era crear una casa simple que es grande, con posibilidades, con la mayor cantidad de lugares diferentes como sea posible.

[ngg src=»galleries» ids=»1237″ display=»basic_thumbnail» images_per_page=»12″ slug=»exit architects»]

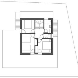
El primer piso de Casa M tiene una cocina, sala de estar, comedor y balcón. La sala de estar puede independizarse de la cocina y el comedor con una puerta corrediza, de modo que una persona puede ver televisión mientras los demás cenan. También cuenta con sanitarios en cada planta. Estas pequeñas cosas hacen que la casa parezca más grande. La planta superior tiene un dormitorio principal, dos dormitorios para niños y un baño compartido.

Exit Architects, 2013©

[ngg src=»galleries» ids=»1238″ display=»basic_thumbnail» images_per_page=»12″ slug=»exit architects»]

Fotografía: ©Exit Architects

TECNNE | Arquitectura, pensamiento crítico y práctica cultural ©Marcelo Gardinetti 2026 – Todos los derechos reservados.
El contenido de este sitio web se encuentra protegido por la legislación vigente en materia de propiedad intelectual e industrial. Salvo en los supuestos expresamente previstos por la ley, queda prohibida su reproducción, distribución, comunicación pública o transformación sin la autorización previa del titular de los derechos correspondientes. Las imágenes y fotografías reproducidas se utilizan exclusivamente con fines informativos, críticos y educativos, en el marco de la divulgación de obras artísticas y arquitectónicas de relevancia cultural. En todos los casos, proceden de fuentes de acceso público en línea, se presentan en baja resolución, carecen de idoneidad para usos comerciales y van acompañadas de la correspondiente mención de autoría, sin que ello implique desconocimiento alguno de los derechos de propiedad intelectual que les son inherentes. Los esquemas y bocetos que acompañan los artículos han sido elaborados por el autor a partir de material fotográfico preexistente, con una finalidad analítica e interpretativa, reconociendo explícitamente la autoría original de las obras representadas y respetando íntegramente los derechos que las protegen.


 

Marcelo Gardinetti
Marcelo Gardinetti

Arquitecto, editor y director de Tecnne desde 2011.
Investigador en teoría y crítica de la arquitectura moderna y contemporánea.
La Plata, Argentina.
ORCID: https://orcid.org/0000-0002-6679-7951

Artículos: 1212

Deja un comentario