Casa en Hernández


Surgió la oportunidad de hacer una casa para mí y mi hijo de 18 años, el cual vendría eventualmente durante la semana. Debía ser por lo tanto una estructura algo indeterminada y abierta, ya que me parece carecer de sentido sostener espacios cerrados solo a la espera de su ocupación.
Se emplaza aislada dentro del lote; donde un verde rústico completaría la relación con los apretados bordes de terreno. No se dejará ver mucho: el lado abierto completamente vidriado estará hacia atrás y avanzará más allá de la línea de dúplex contiguos para absorber el sol de la tarde.

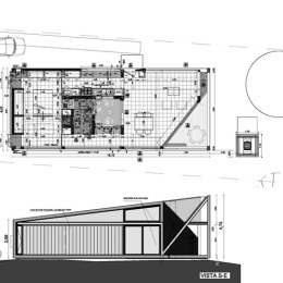
Lucha el proyecto con un lote al revés, más una restricción lateral de 2 m que reduce desde el comienzo el ancho de 10m, a 8m efectivos.

La casa debía ser de una sola planta – cuestión decidida antes de la compra del lote – y levemente elevada sobre el suelo.
Aparentemente por la humedad, seguramente por cuidar su expresión formal.
Debía proveer sólo un pequeño fondo verde de fácil o casi nulo mantenimiento.
En cuanto al interior, los ambientes se suceden evitando las puertas. Unas láminas corredizas hacen las veces de tamiz.
Tiene en su interior un pequeño patio como recorte de luz y regulador de ventilación, de 2x2m. El mismo pauta el programa público y privado, además de reunir muebles empotrados (los únicos) y servicios.
Algunas paredes son translúcidas sin incidencia de sol directo, proporcionando cambios de iluminación a lo largo del día. Luz plana. La estructura mixta refleja esta decisión: una mitad muraria y con ventanas controladas (sur), otra mitad metálica y francamente vidriada (norte).
Evita al máximo posible la sensación irreversible que proporcionan los muros de mampostería.
Tenía que expresar el espíritu general de un contenedor sectorizado. Me persiguió el interés de que el lenguaje se aleje sensiblemente de la idea de casa tradicional o actual, pretendiendo evitar el cansancio que el tiempo le da a los objetos identificados con su época.

©Arq. Raul Arteca

Redaccion
Redaccion
Artículos: 282

Deja un comentario