Un nuevo y destacado destino cultural en China ha sido inaugurado, con una exposición especial de óleos de artistas locales en uno de los edificios principales de la plaza cultural de Datong New City. Este edificio de Norman Foster se convertirá en un centro para las industrias creativas de la región, con una forma escultural concebida como un terreno ajardinado con pirámides interconectadas. El museo cuenta con espacios subterráneos para galerías, así como áreas dedicadas a la educación y el aprendizaje, como una galería infantil, una mediateca y un almacén de arte. El diseño del edificio incluye cuatro pirámides interconectadas en el techo, que permiten la entrada de luz natural a través de claraboyas en su vértice. La cubierta está revestida con placas de acero curvadas y oxidadas, que ayudan a drenar el agua y le dan una calidad tridimensional a la superficie.
Datong Art Museum: Norman Foster Museo de Arte Datong
Concebido como una erupción del paisaje, el Datong Art Museum de Norman Foster presenta una forma única desde el exterior: su techo, compuesto por cuatro volúmenes piramidales interconectados, evoca los picos naturales de la región montañosa circundante.
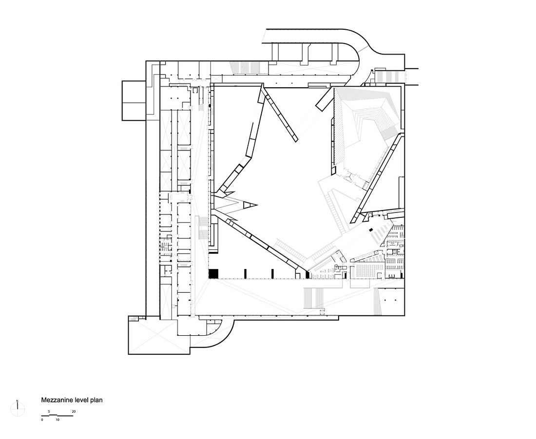
El acceso al museo se realiza mediante una rampa de suave pendiente y una escalera integrada en una plaza hundida que forma un anfiteatro informal. El edificio se desarrolla por debajo de esta plaza, lo que le permite armonizar con la altura de los otros edificios culturales cercanos. La integración del museo en la plaza nueva iguala la escala de los tres edificios culturales existentes, equilibrando la composición del plan maestro del área.

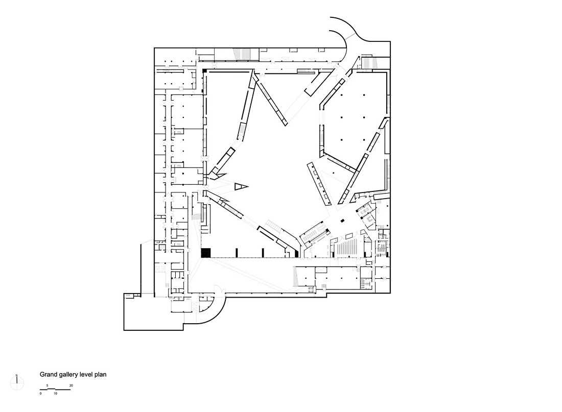
La llegada a la Gran Galería ofrece una experiencia visual teatral del museo. En el perímetro, se ubican espacios de exposición con control climático; alrededor de los patios hundidos se encuentran una galería infantil, una cafetería, un restaurante y otros espacios de apoyo.
La sala central, el núcleo del museo, cuenta con una superficie de 32,000 m² y un espacio de exposición de 37 metros de altura y casi 80 metros de ancho, ideal para obras de gran escala. Diseñada para facilitar el ingreso de vehículos de transporte, la sala permite la entrada de esculturas, escenografías y escenarios. Su diseño flexible y eficiente integra los servicios dentro de la estructura.
El techo está revestido con placas de acero corten en tonos tierra, imitando los picos naturales y resistiendo el paso del tiempo. Compuesto por cuatro pirámides interconectadas que se elevan y se abren hacia las cuatro esquinas de la plaza cultural, el techo incorpora tragaluces en el perímetro de cada volumen. Estos tragaluces crean una dinámica de luces y sombras en el interior y actúan como faros nocturnos para el barrio.
Representando el 70% de la superficie expuesta, el techo está compuesto por una doble capa aislante conforme a los códigos de construcción. Con solo un 10% de superficies vidriadas, el diseño favorece el mantenimiento y minimiza el consumo de energía.
“El museo está concebido como un centro social para la gente -un «salón urbano» para Datong- que reúne a personas, arte y artistas en un espacio donde pueden interactuar. En el corazón del museo, la Gran Galería ejemplifica este espíritu con un espacio expositivo flexible y de generosas dimensiones, diseñado para albergar obras de arte a gran escala encargadas especialmente, así como representaciones artísticas y otros eventos. Diseñado para el futuro, esperamos que el museo se convierta en el centro de la vida cultural de la ciudad, un destino público dinámico” Luke Fox, Foster + Partners
Datong Art Museum, Norman Foster Museo de Arte Datong: Memoria del proyecto
Un nuevo e importante destino cultural en China, se ha abierto al público con una exposición especial de óleos de artistas locales. Se trata de uno de los cuatro edificios principales de la plaza cultural de Datong New City, que se convertirá en un nuevo centro para las industrias creativas de la región. La forma escultural del edificio se ha concebido como un terreno ajardinado con una serie de pirámides interconectadas que emergen de debajo de la tierra: los espacios de las galerías están hundidos bajo tierra y rodeados de plazas ajardinadas. El programa cultural del museo se complementa con una serie de espacios dedicados a la educación y el aprendizaje, como una galería infantil, una mediateca, un archivo y un almacén de arte.
Los visitantes son guiados hacia el museo por fuertes caminos diagonales en el paisaje. La entrada se realiza a través de una sinuosa secuencia de rampas que desembocan en una plaza abierta y hundida, que también sirve de anfiteatro para actuaciones al aire libre. Al entrar en el edificio, los visitantes llegan a un entresuelo que revela una espectacular vista de la Gran Galería, el corazón social del museo, que mide 37 metros de altura y abarca casi ochenta metros. Alrededor del perímetro del museo, en un solo nivel, se han colocado otros espacios de exposición climatizados que facilitan el acceso. Un aspecto clave del edificio es el enfoque en la educación y el aprendizaje con una galería dedicada a los niños, llena de luz solar desde las altas ventanas orientadas al sur. Un centro educativo más pequeño y una mediateca complementan el programa educativo y hay instalaciones para apoyar residencias de artistas, charlas y conferencias.
Las cuatro pirámides interconectadas del tejado aumentan en altura y se abren en abanico hacia las cuatro esquinas de la plaza cultural. La luz natural penetra en el interior a través de las claraboyas situadas en el vértice de cada pirámide. El diseño de la cubierta es una respuesta directa a la gran envergadura estructural del edificio y al deseo de crear un vasto y flexible volumen sin columnas en la parte inferior, a la vez que median los espacios más pequeños de la galería hacia los bordes. El tejado está revestido con placas de acero curvadas y oxidadas de forma natural que ayudan a drenar el agua y dan una calidad tridimensional a la superficie. Los paneles están proporcionados para adaptarse a la gran escala del museo y su disposición lineal acentúa la forma piramidal del tejado.






Norman Foster Museo de Arte Datong – Datong Art Museum, China:
- Descripción general:
- Uno de los cuatro edificios principales de la plaza cultural de Datong New City
- Nuevo centro para las industrias creativas de la región
- Diseño arquitectónico:
- Forma escultural con una serie de pirámides interconectadas que emergen del terreno
- Espacios de galerías hundidos bajo tierra, rodeados de plazas ajardinadas
- Programa y espacios:
- Exposición especial de óleos de artistas locales
- Espacios dedicados a educación y aprendizaje: galería infantil, mediateca, archivo, almacén de arte
- Gran Galería de 37 metros de altura y 80 metros de longitud, como corazón social del museo
- Otros espacios de exposición climatizados alrededor del perímetro
- Experiencia del visitante:
- Acceso a través de una secuencia sinuosa de rampas que desembocan en una plaza hundida
- Vistas espectaculares desde el entresuelo hacia la Gran Galería
- Cubierta y estructura:
- Cuatro pirámides interconectadas que aumentan en altura y se abren en abanico
- Claraboyas en el vértice de cada pirámide para iluminación natural
- Cubierta de placas de acero curvadas y oxidadas, drenaje de agua y textura tridimensional
- Enfoque en educación y aprendizaje:
- Galería infantil con abundante luz natural
- Centro educativo y mediateca complementan el programa






Fotografías: ©Yang Chaoying
TECNNE | Arquitectura y contextos ©Marcelo Gardinetti 2025 Todos los derechos reservados.
El contenido de este sitio web está protegido por los derechos de propiedad intelectual e industrial. Salvo en los casos previstos en la ley, su reproducción, distribución, comunicación pública o transformación sin la autorización del titular de los derechos es una infracción penalizada por la legislación vigente. – Justificación del uso de imágenes y fotografías: – se utilizan las fotografías porque tratan de una obra artística y o arquitectónica significativa – la imagen solo se utiliza con fines informativos y educativos – la imagen está disponible en internet – la imagen es una copia de baja resolución de la obra original y no es apta para uso comercial – En todos los casos se menciona el autor –




Comment here
Lo siento, debes estar conectado para publicar un comentario.