Dovecote Studio, Haworth Tompkins
La noción de patrimonio en intervenciones sobre arquitecturas existentes promueve una interacción nutrida en diferentes estratos. Requieren la comprensión del devenir histórico de la propia obra para hacer “visible” su valor patrimonial, principalmente si se trata de los vestigios de una arquitectura poco reconocible. En este sentido, convertir la ruina en un recurso cultural es una de las claves para ordenar el concepto de puesta en valor.
Marcelo Gardinetti | 15 de junio de 2020
En la interacción con el nuevo programa, resulta necesario determinar lo que el edificio puede “soportar” como adición funcional y su adaptabilidad a los nuevos usos. Por último, establecer el «concepto de restauración» en el sentido necesario para comprender la relación directa de la intervención con el patrimonio existente. En su forma más inocente, la restauración puede ser vista como la reparación, el restablecimiento y la restauración del original. Sin embargo, también puede representar la práctica de la alteración completa de lo existente al supuesto estado anterior del original (Lomas 2012).
Tarchini expresa que la necesaria interpretación que implica todo proyecto de intervención sobre las preexistencias encuentra en la arquitectura moderna dos claros componentes a considerar. Por un lado, los componentes conceptuales, sustentados en las ideas y teorías de época, que se basaron en la ruptura con el pasado, la innovación, la abstracción, la racionalidad y la eficiencia; y por otro, los componentes físicos, vinculados a la forma y la materia, en donde destacan las recurrencias a los nuevos materiales y tecnologías, a la especialización funcional y a la exploración espacial (Tarchini, 2013)
El Dovecote en Snape Malting’s es un ejemplo de esta práctica. La decisión proyectual es mantener la integridad de lo que queda; por tal motivo, la intervencióne limita la acción sobre los muros existentes y se incorpora una estructura ajena en su interior para revalorizar la temporalidad de las dos arquitecturas. Las ruinas pertenecieron a una pequeña estructura de dos pisos de una planta de cebada inaugurada en el siglo XIX. Era utilizada como un palomar distanciada del resto del complejo. estaba formada por una base de ladrillos que soportaba una estructura liviana. Abandonada durante muchos años, parte de los muros se desmoronaron y las estructuras metálicas fueron corroídas por el óxido. Una Fundación se hizo cargo de restaurar los edificios originales del complejo para implementar una escuela artística y otras instalaciones de servicio. El estudio del palomar forma parte de esa renovación.
Arquitectura y alegoría
Dentro del lenguaje narrativo de las artes, la imagen de la ruina se utiliza como una metáfora de las condiciones polarizadas; puede apoyar los territorios viscerales de la escena romántica o contar los eventos apocalípticos. Como imagen u objeto de arte, la ruina tiene la capacidad de establecer la trama, el lugar y el evento de una manera tan poderosa como sutil. La belleza de la ruina es un collage similar de polaridades y sutilezas; la imagen inferida del original está presente simultáneamente con la del conjunto restante de la cultura material. La ruina es más que los restos de un edificio; es un museo viviente, un narrador de historias, un objeto de arte. La ruina de un edificio lo libera de la tiranía de la función y el uso, trasladándolo al sublime territorio de la antigüedad y la escultura1.
Haworth Tompkins emplea un concepto alegórico para preservar el carácter del sitio. Implanta una nueva estructura en el interior de la ruina, separado de muros existentes para diferenciar los elementos de dos tiempos diferentes. Jenkcs señala el «Contrapunto Contextual” entre los componentes de dos estructuras de diferentes tiempos de ejecución como una de las formas más alta de la arquitectura, un concepto que reafirma su idea de ciudad como capas de arquitecturas de diferentes épocas (Jencks, 2013,14)
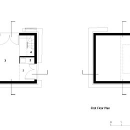
El pequeño edificio será utilizado como atelier de artistas visuales, aunque el espacio es flexible a otros usos. De este modo, la ruina se revitaliza en el momento en que adquiere una nueva funcionalidad. El color y las texturas de los materiales empleados son referenciales del sitio, y confieren a la intervención una posición respetuosa del escenario contextual. El interior del estudio está revestido con placas de madera contrachapado que le confieren una textura cálida y luminosa. Un pequeño entrepiso permite amplias vistas sobre el área de intervención.
A cierta distancia, las estructuras se integran visualmente como un perfil uniforme y homogéneo, pero la acercarse, la ruina se torna legible y fortalece el valor de la intervención, que expresa en esa alegoría conceptual una declaración de valor patrimonial.
El uso de la ruina como gestor de identidad y pertenencia al lugar, es abordado desde un análisis interpretativo, donde los restos materiales son utilizados como el sostén indispensable de la nueva arquitectura.
no images were found
Dovecote Studio, Haworth Tompkins Memoria del proyecto
El campus creativo de Snape Maltings fue fundado por Benjamin Britten en edificios industriales abandonados en la costa de Suffolk. El edificio es parte de la extensión gradual de Haworth Tompkin del campus de Música de Aldeburgh y ocupa las ruinas de un palomar con vistas a las marismas.
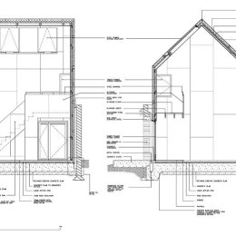
La nueva forma del volumen interno expresa una estructura victoriana mediante un cobertor de acero Corten, un monocasco soldado que fue prefabricado y colocado posteriormente en su posición. El edificio está soldado en una sola pieza como el casco de un barco, para lograr la estanqueidad del tiempo, y luego equipado con un revestimiento interno sencillo.
Una gran ventana al norte proporciona luz para los artistas, mientras que una pequeña plataforma en el primer nivel incorpora una ventana de esquina vidriada para abrir largas vistas sobre las marismas hacia el mar. El volumen solo será utilizado por los artistas en residencia, como ensayo para músicos o espacio de actuación, para las reuniones o como un espacio de exposición temporal.

Sólo se llevaron a cabo las mínimas reparaciones de albañilería necesarias para estabilizar la ruina existente antes de insertar la nueva estructura. Se mantuvieron las ventanas existentes en descomposición y la vegetación que crece sobre el palomar, que está protegida para permitir que continúe un proceso natural de envejecimiento y decadencia. Las paredes interiores y el techo del nuevo espacio están
Antes de insertar la estructura de Corten, se construyó un nuevo canal de drenaje en el nivel de base para asegurar que el agua corra entre la antigua y la nueva estructura, canalizada puntos de drenaje accesibles en los umbrales de las puertas. Las paredes interiores y el techo del espacio están aislados, sellados con una capa de control de vapor de alto rendimiento, y cubiertas de contrachapado de abeto para crear una «caja» de la madera dentro de la envolvente de acero corten. Las hojas de madera laminada también forman la estructura de las escaleras, la balaustrada y el entrepiso.
Haworth Tompkins©
Notas:
1 Katy Lomas and Paul Ring, “Restoration: Authenticity and Deception”, BNERP Architecture (July 2012)
Bibliografía
Cramer, Johannes; Breitling, Stefan, “Architecture in existing fabric: planning, design, building” (Basel: Birkhauser, 2007)
Jenks, Charles y Silver, Nathan “Adhocism, The Case for Improvisation” (London: MITpress, 2013), 12-18
Lomas, Katy and Ring, Paul, “Restoration: Authenticity and Deception”, BNERP Architecture (July 2012)
Tarchini, María Laura, “Intervenciones en la arquitectura moderna” XI Jornada de Técnicas de Reparación y Conservación del Patrimonio (2013)
Fotografías: ©Haworth Tompkins
TECNNE | Arquitectura, pensamiento crítico y práctica cultural ©Marcelo Gardinetti 2026 – Todos los derechos reservados.
El contenido de este sitio web se encuentra protegido por la legislación vigente en materia de propiedad intelectual e industrial. Salvo en los supuestos expresamente previstos por la ley, queda prohibida su reproducción, distribución, comunicación pública o transformación sin la autorización previa del titular de los derechos correspondientes. Las imágenes y fotografías reproducidas se utilizan exclusivamente con fines informativos, críticos y educativos, en el marco de la divulgación de obras artísticas y arquitectónicas de relevancia cultural. En todos los casos, proceden de fuentes de acceso público en línea, se presentan en baja resolución, carecen de idoneidad para usos comerciales y van acompañadas de la correspondiente mención de autoría, sin que ello implique desconocimiento alguno de los derechos de propiedad intelectual que les son inherentes. Los esquemas y bocetos que acompañan los artículos han sido elaborados por el autor a partir de material fotográfico preexistente, con una finalidad analítica e interpretativa, reconociendo explícitamente la autoría original de las obras representadas y respetando íntegramente los derechos que las protegen.
©TECNNE 2015, actualizado 2020
